156㎡四居现代简约风格海棠公馆
发布时间:
2017年03月02日
小区:海棠公馆 面积:156㎡ 户型:四居 风格:现代简约风格
设计说明
设计说明:
业主是一位从事金融行业的年轻人,平时爱喝咖啡,喜欢看书,他对设计师的要求是房子要简单、稍显时尚、稳重。
简约主义是由上世纪80年代中期对复古风潮叛逆和极简美学的基础上发展起来的。因此我们追根溯源,将简约与现代结合。
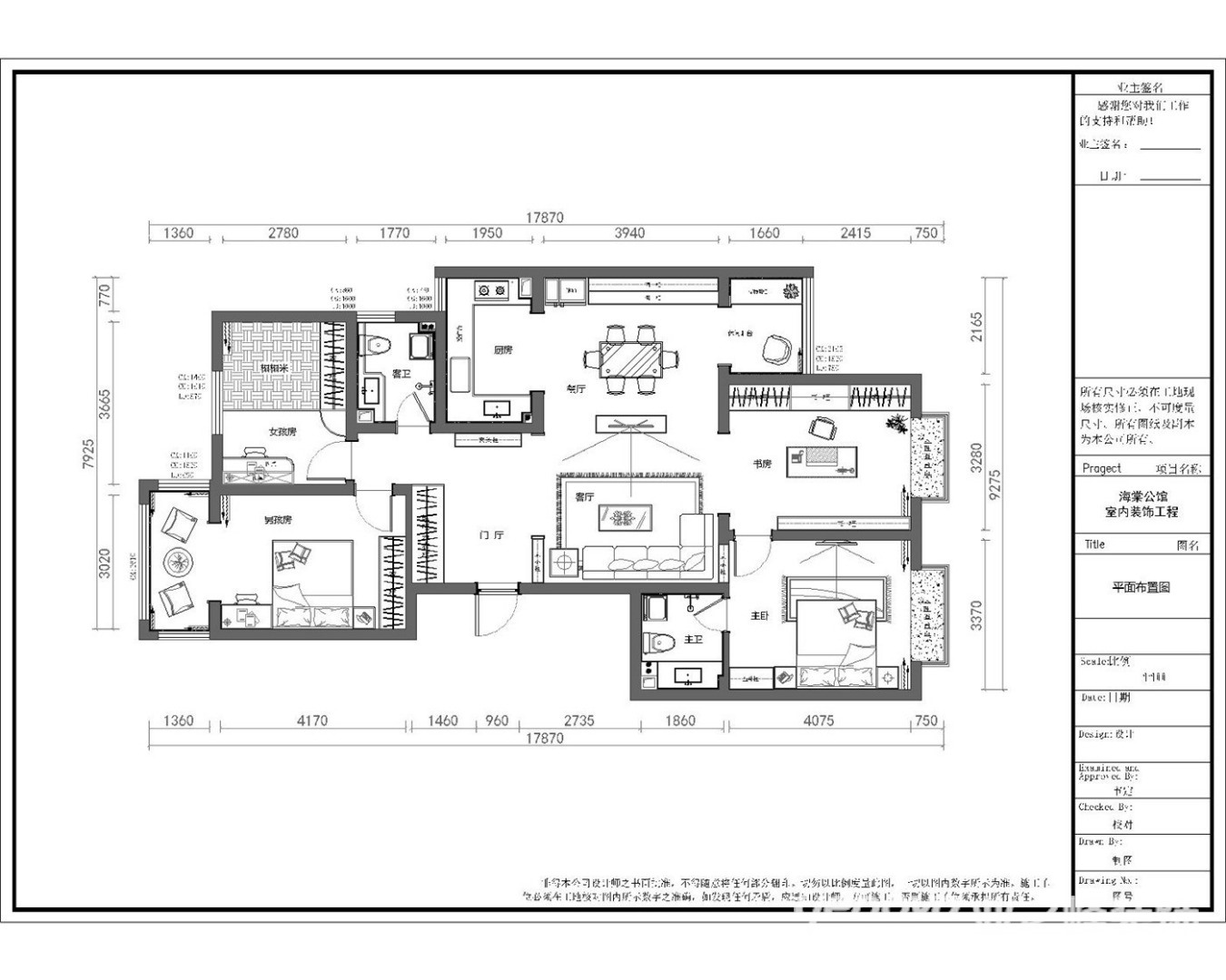
户型图

客厅



书房

餐厅

玄关





京公安网备11010502040911