112㎡三居现代简约风格美林青城
发布时间:
2017年01月07日
小区:美林青城 面积:112㎡ 户型:三居 风格:现代简约风格
设计说明
本次案例小区位于武昌实验寄宿小学美林校区旁。是典型的学区房,业主也是考虑小孩上学方便才在此买的房,装修意向比较直接,简单温馨。初次见面时客户也一直说不要繁琐,考虑到小孩经过一天繁忙的学业,回到家里能感受到温馨的氛围缓解他的疲劳,那么在配色上我会以原木色为主。
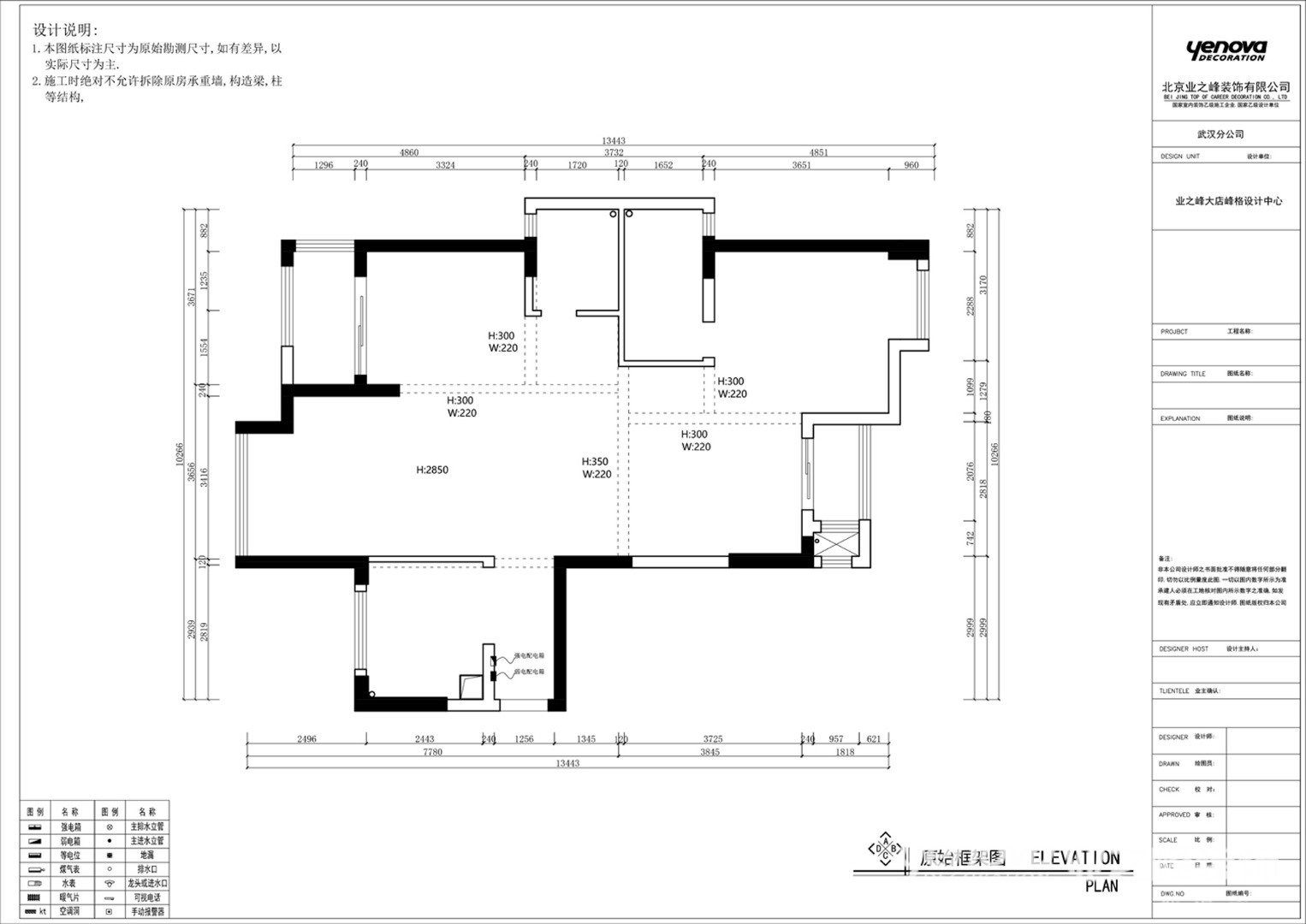
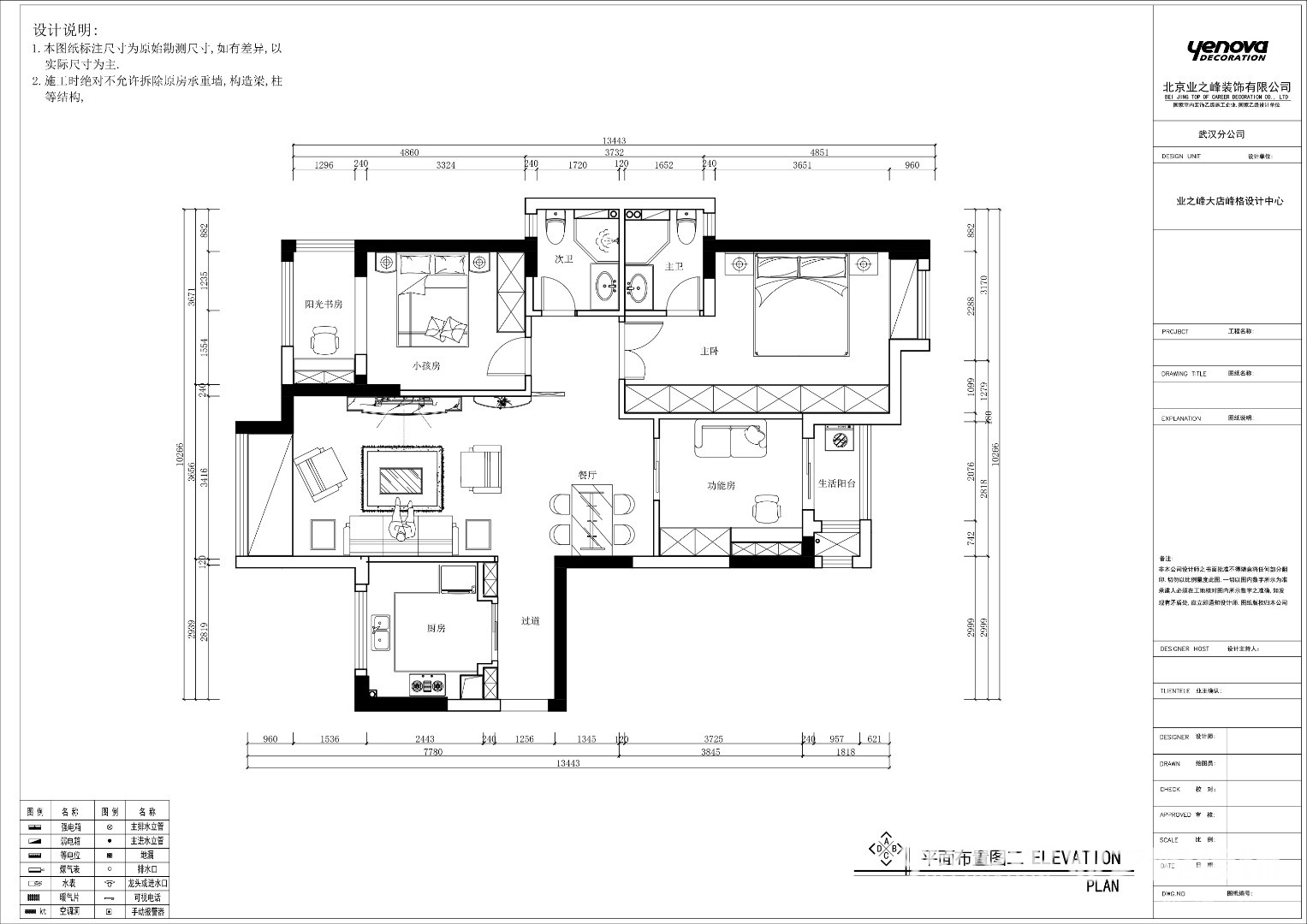
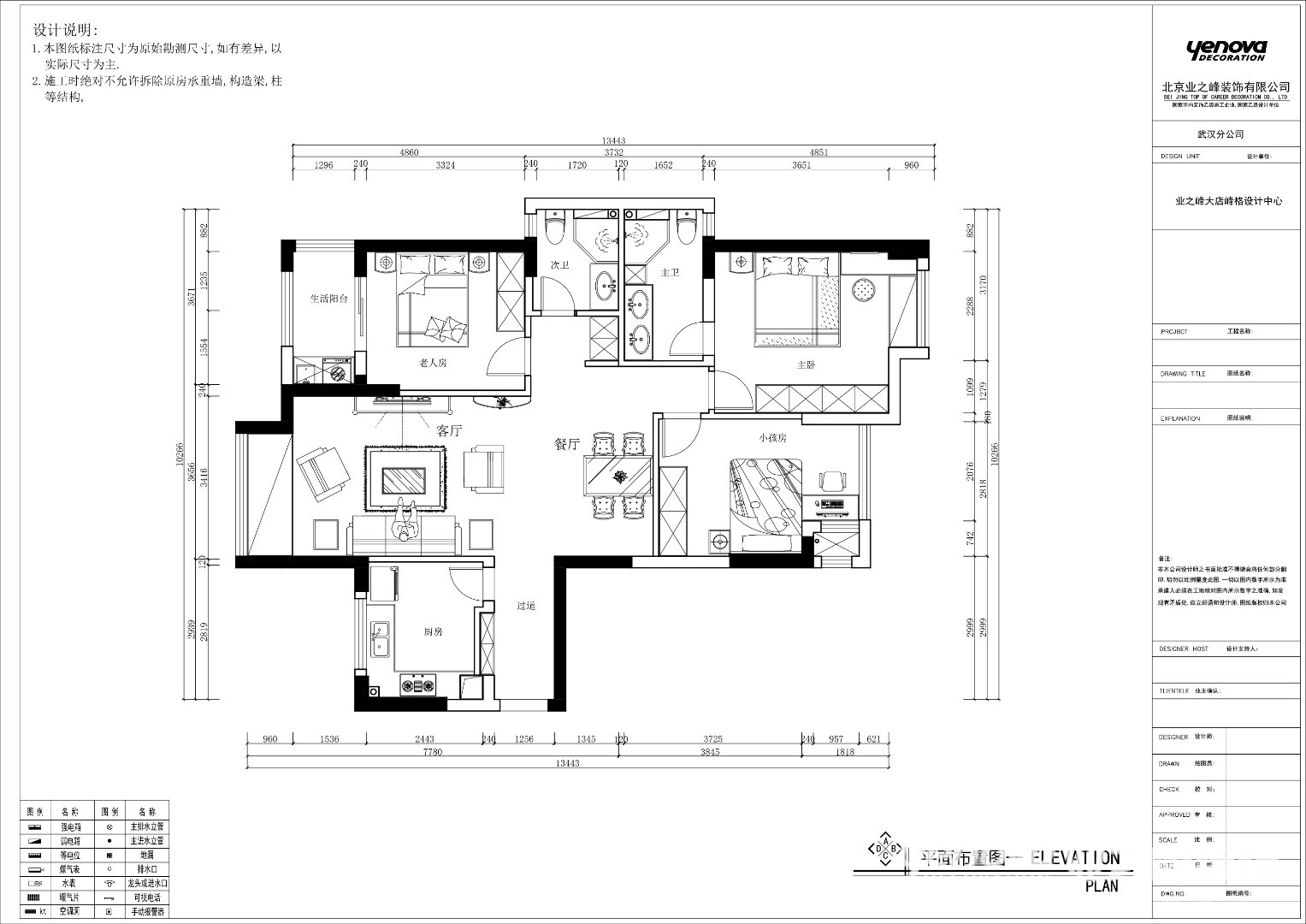
户型解析:功能方面三室两厅112平的户型基本能满足业主的需求,采光与通风方面也比较不错,客餐厅相当通透,因为父母偶尔会过来住,在功能房放了个沙发床。此户型在入户门处鞋柜的处理比较尴尬,稍微借用了厨房的空间做两组对称的鞋柜既美观有有足够的收纳空间,同时厨房门做玻璃梭门让过道更加明亮,主卧采用子母门进行装饰,彰显主人品味。在风水上入户开门见角易发生口角,所以电视背景墙角放置一个端景柜,增加美观。
以简驭繁, 用简捷了当的方法来处理复杂纷繁的空间关系。 简约但不简单, 简约风格不仅注重居室的实用性,而且还体现出了现代社会生活的精致与个性,符合现代人的生活品位。以简单原木色的家具进行装饰,拥抱大自然墙面采用浅咖色不失温馨,地面铺设地板小孩可以尽情的在地上玩耍。简单的顶面尽显现代利落风采。
总结:现代简约的设计风格,摒弃不必要的装饰,力求用最朴实素净的语言阐述一种舒适宜居的生活空间,简单平板的木色饰面对比柔和的墙纸过度,使得整个空间有着温馨舒适的小资情调;素雅的色调配合简单的居家陈设品使整个空间充满了清新的时尚气息;化繁为简,让心灵得到栖息这是我们对家的理解。
客厅













京公安网备11010502040911