97㎡三居现代简约风格国仕山
发布时间:
2016年12月23日
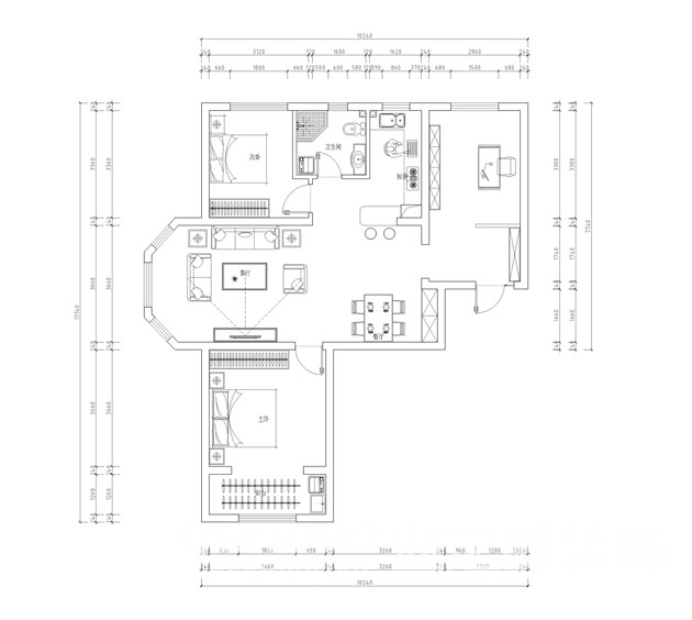
小区:国仕山 面积:97㎡ 户型:三居 风格:现代简约风格
设计说明
本方案采用现代风格,业主喜欢简约大气的现代风格,本案以精美的装饰、简单的色彩、大气的造型达到简约大气的装饰效果。客厅顶部用直线灯池吊顶,主要运用各种颜色营造气氛。墙面造型运用壁纸、玻璃和漆相结合,材质简单,造型流畅。墙面用高档壁纸,或优质乳胶漆,以烘托高贵效果。主卧造型简单,色彩干净,气氛温馨而舒适,鲜花,绿植,任何一个角落,都能体会到业主自在的生活和娴静心情。
户型图

客厅



玄关


餐厅





京公安网备11010502040911