95㎡三居现代简约风格长久中心
发布时间:
2016年12月23日
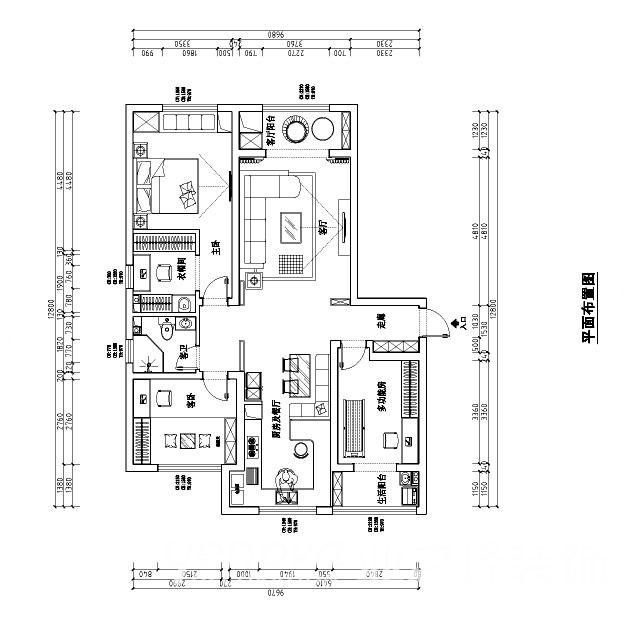
小区:长久中心 面积:95㎡ 户型:三居 风格:现代简约风格
设计说明
本方案采用现代风格,业主喜欢简约的现代风格,本案以精美的装饰、温馨的色彩、大气的造型达到温馨大方的装饰效果。客厅顶部用直线反光灯池吊顶,显得低调而精致,并用简单线性吊灯营造气氛。墙面造型运用石材、壁纸和实木相结合,材质多样化,造型丰富精美。墙面用高档壁纸,或优质乳胶漆,以烘托大气效果。主卧运用软包,造型精致,色彩干净,温馨舒适,鲜花,绿植,任何一个角落,都能体会到业主温馨舒适的生活和娴静的心情。
户型图

儿童房

客厅



玄关

餐厅


衣帽间


卧室





京公安网备11010502040911