130㎡三居现代简约风格荣盛阿尔卡迪亚
发布时间:
2016年12月22日
小区:荣盛阿尔卡迪亚 面积:130㎡ 户型:三居 风格:现代简约风格
设计说明
以简欧为主题,糅合巴洛克典雅风格与现代唯美主义,把宽敞舒适的空间修饰为富丽堂皇的尊贵府第,令人醉倒在满泻的浑黄灯光下。繁杂的水晶灯、雕花贴金的家哗範糕既蕹焕革唯宫沥俱、高档的花纹墙纸,处处充满宫庭奢华效果。细节及材质:华丽的金色和典雅的欧式线条每一处都经过精心的推敲,哑金色的壁纸在细腻繁复的顶角线下一铺到位。客厅里石质地砖光可照人,而虎纹的地毯上,金色的丝绒沙发,线条优雅餐椅,还有金泊的台几,墙壁上悬挂的配有精致雕花的镜子无不散发着特有的奢华气质.
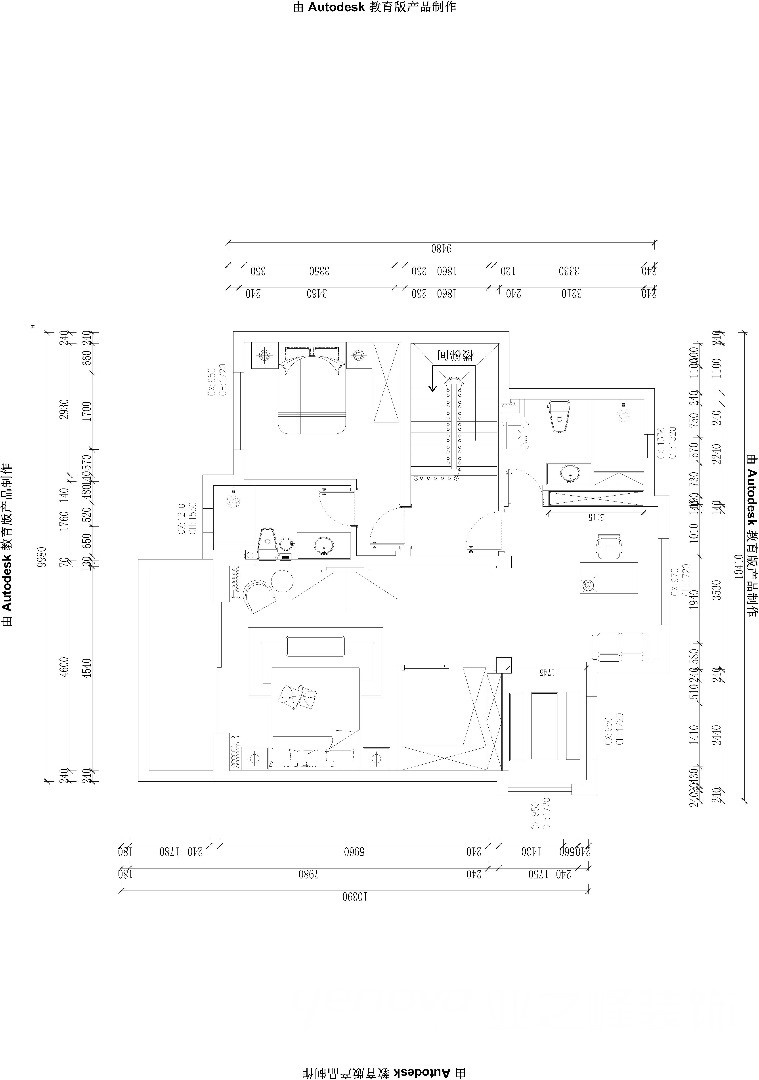
户型图

客厅



卫生间

儿童房

卧室

餐厅





京公安网备11010502040911