125㎡三居现代简约风格宏达世纪城
发布时间:
2016年11月30日
小区:宏达世纪城 面积:125㎡ 户型:三居 风格:现代简约风格
设计说明
设计师说明:自然简洁,展现出的是港式家居风格。自然的木质色调使居室充满休闲的氛围,是节奏都市生活的休恬的港湾。最为大胆突出的处理就是把主人房设计为开放式的空间。在本案的设计中,设计者更注重空间共性的表达,从尊重建筑内在精神入手,运用具有一致性和规律性的表达手法来处理空间的体块关系、收口关系、光影关系,利用纵向的立面设计,大块面的墙面铺装和简洁的家具陈设,挖掘建筑自身的魅力,还原居住空间——“家”的本真概念,这是对空间共性的探求。
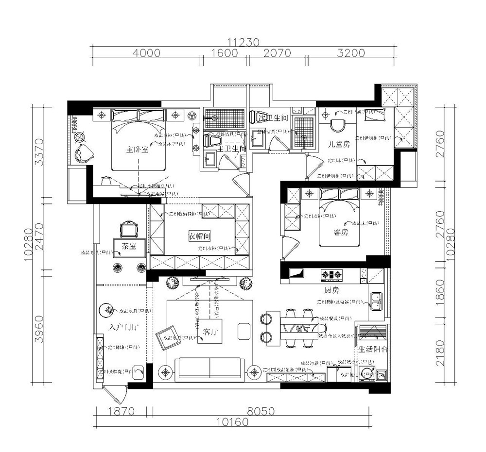
户型图

卫生间

客厅


卧室

玄关





京公安网备11010502040911