106㎡二居现代简约风格晶城秀府
发布时间:
2016年09月11日
小区:晶城秀府 面积:106㎡ 户型:二居 风格:现代简约风格
设计说明
本案居室整体采用黑白两色主调,整体感觉时尚而又不失温馨感。墙面顶面做灯带处理结合,相互呼应。更加富有空间感。
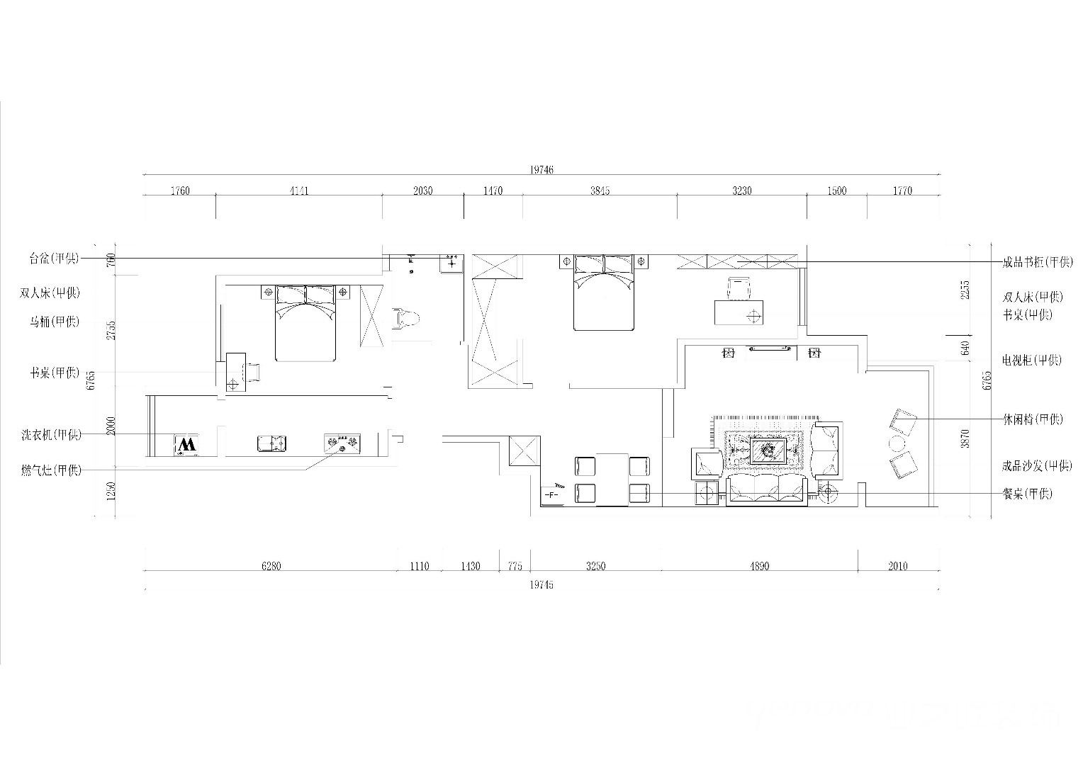
户型图

客厅



餐厅

本案居室整体采用黑白两色主调,整体感觉时尚而又不失温馨感。墙面顶面做灯带处理结合,相互呼应。更加富有空间感。




