010-84934479
扫码快速拨号 >
扫码快速拨号

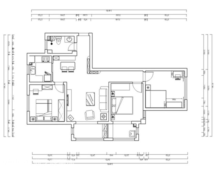
125㎡三居现代简约风格上城浩林园

发布时间: 2016年09月04日
小区:上城浩林园 面积:125㎡ 户型:三居 风格:现代简约风格
设计说明

本案的设计风格为现代风格,营造典雅、自然、干练的气质是本案的主题。简约、质朴的设计风格是众多人群所喜爱的,生活在繁杂多变的世界里已是烦扰不休,而简单、自然的生活空间却能让人身心舒畅,感到宁静和安逸;藉着室内空间的解构和重组,便可以满足我们对悠然自得的生活的向往和追求,让我们在纷扰的现实生活中找到平衡,缔造出一个令人心弛神往的写意空间。


户型图
阳台
客厅
餐厅
厨房
本案设计师
业之峰专业设计师
我家装成这样多少钱?
相关案例推荐
报价计算器
免费量房
免费设计
回到顶部