196㎡平层现代简约风格银丰唐郡
发布时间:
2016年08月04日
小区:银丰唐郡 面积:196㎡ 户型:平层 风格:现代简约风格
设计说明
港式风格家居,家居风格的一种。香港的室内设计潮流多以现代为主,大多色彩冷静、线条简单。港式风格家居,家居风格的一种。如果将整个居室的室内设计比喻成一部耐人寻味的电影的话,那么家居设计就是这电影中时时出现在关键时刻的电影配乐,或者说插曲。电影插曲总在最打动人心的时刻出现,有着画龙点睛的作用。家居饰品也一样,它点染居室的风格,烘托居室的格调,平衡居室内色彩、图案、明暗、大小等多方关系,是室内装修中不可或缺的重要组成部分。香港的室内设计潮流多以现代为主,大多色彩冷静、线条简单,如果您觉得这种过于冷静的家居格调显得不够柔和,您就需要有一些合适的家居饰品协调、中和这种冷静
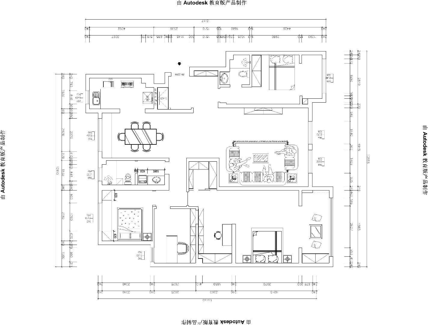
户型图

客厅




卫生间

餐厅



玄关







京公安网备11010502040911