160㎡四居现代简约风格南城都汇
发布时间:
2016年07月08日
小区:南城都汇 面积:160㎡ 户型:四居 风格:现代简约风格
设计说明
设计说明:本案将局势的风格定位在现代简约.在内部空间的布置上,设计师以能减则减,能删则删为原则.去除一些不必要的装饰和点缀,留下一个整齐通透的空间,少了份拥挤郁闷,多了份简约清新.整体色系以素色为主,刚硬的线条,让空间显得简单利落,适当加入一些自然元素和精美饰品,成功营造出温馨 清雅的生活氛围。
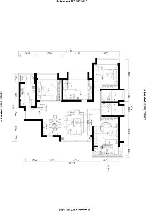
户型图

卧室



客厅






京公安网备11010502040911