174㎡现代简约风格天朗曲院庭香
发布时间:
2016年06月22日
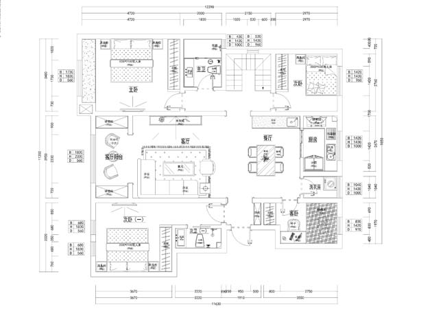
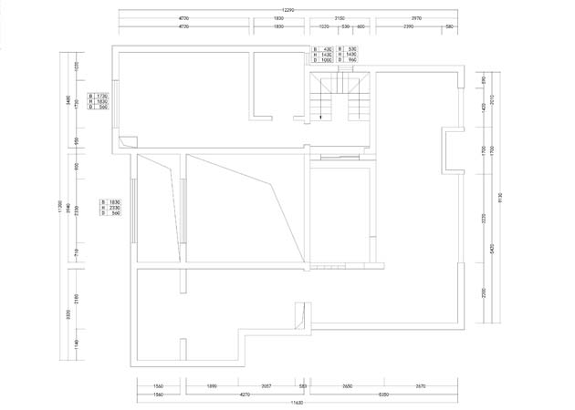
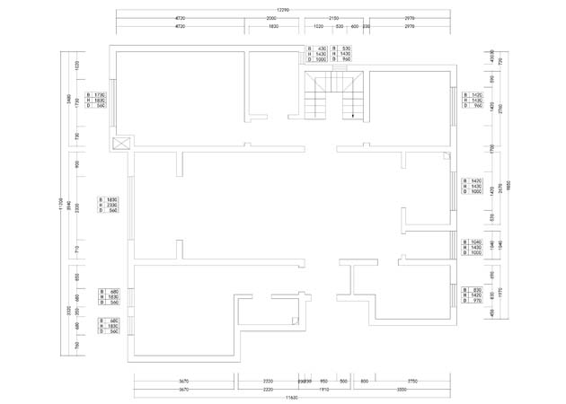
小区:天朗曲院庭香 面积:174㎡ 户型: 风格:现代简约风格
设计说明
本案例,房子位于西安市曲江新区。案例风格定位高贵典雅的法式现代风格,轻度的奢华和精致的家居是本案的主题。 法式家居常用洗白和华丽配色,洗白手法传达法式特有的内敛特质与风情,配色以白、金、深色的木色为主。现代的的法式风格不仅仅有法式的典雅和高贵也有现代风格的展现,将两种风格和二为一,细节处理上运用了法式廊柱、雕花、线条,制作工艺精细考究。室内空间法式十分推崇优雅、高贵和浪漫,它是一种基于对理想情景的考虑,追求建筑的诗意、诗境,力求在气质上给人深度的感染。风格则偏重庄重大方,整个空间多采用对称造型,恢弘的气势,豪华舒适的居住空间多用石材装饰。 风格搭配原则,餐桌和餐椅均为海蓝色和金色的搭配,更显高贵的生活情调,表面略带雕花,配合扶手和椅腿的弧形曲度,显得优雅矜贵,整体空间恢弘大气,又不失浪漫气息。
户型图

客厅





餐厅

卧室





京公安网备11010502040911