143㎡三居现代简约风格冠城揽翠华庭
发布时间:
2014年07月09日
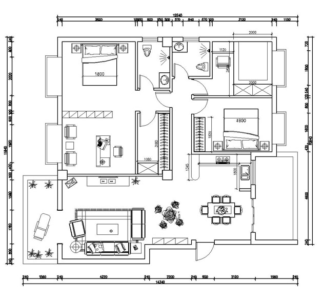
小区:冠城揽翠华庭 面积:143㎡ 户型:三居 风格:现代简约风格
设计说明
本方案定位于现代简约风格。
功能分区 本方案设定为三间卧室配一个书房;其中主卧与书房一体,给屋主一个宽敞的大卧室,配上一个独立的衣帽间,满足现代人的储物需求。儿童房采用榻榻米的手法装饰,在满足儿童房的储物需求上,给孩子最大的休息空间。本方案用最简洁的线条修饰,给人清新分明的感觉,设计感极佳,表现了客户非凡的设计品位和生活质感。这样的空间,简约的同时,又创意万分。
色彩单配 色调用誉为永不过时的黑白灰。简洁的装饰既保持客厅保持原设计时的宽敞,又不失时尚。
客厅








京公安网备11010502040911