142㎡三居现代简约风格汇锦花园
发布时间:
2014年09月27日
小区:汇锦花园 面积:142㎡ 户型:三居 风格:现代简约风格
设计说明
原空间有很多梁和柱子,这是业主比较关注的,业主是刚结婚的年轻人,喜欢特别时尚的现代风格。本案通过运用弧线吊顶及造型来修饰,餐厅及过道用了大量镜子处理,让空间延伸更有层次感。
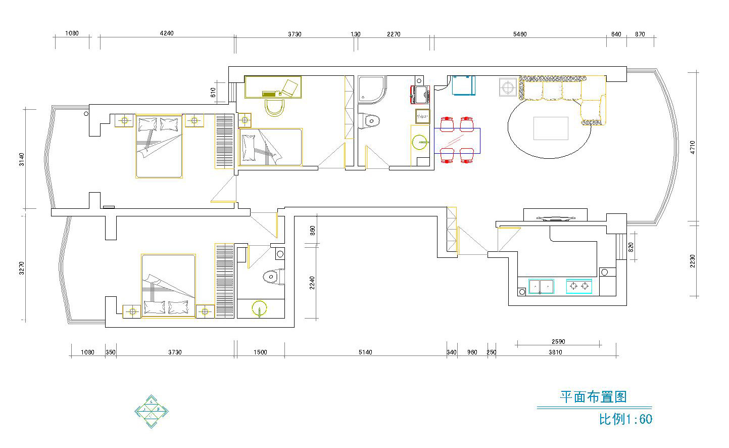
户型图

客厅





卫生间


儿童房

卧室

餐厅

原空间有很多梁和柱子,这是业主比较关注的,业主是刚结婚的年轻人,喜欢特别时尚的现代风格。本案通过运用弧线吊顶及造型来修饰,餐厅及过道用了大量镜子处理,让空间延伸更有层次感。










