93㎡三居现代简约风格方大上上城
发布时间:
2015年07月31日
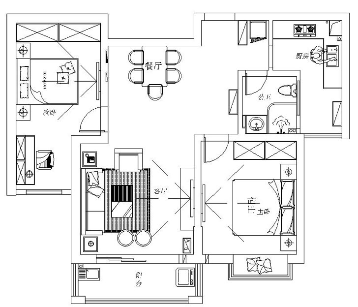
小区:方大上上城 面积:93㎡ 户型:三居 风格:现代简约风格
设计说明
此居室整体采用中性色调,稳重,大气,却又不失品位,有令人眼前一亮的感觉。最重要的是强调功能性设计,线条简约流畅,色彩对比强烈,这是现代风格家具的特点。此外,大量使用壁纸等材料作为辅材,也是现代风格家居风格的主要装修材料,能给人带来现代、时尚,大气的感觉。由于装饰元素少,以软装去营造家居空间,要给居室留下变换的空间,与现代风格的硬装进行完美的配合,才能显示出美感。
客厅



卧室


厨房





京公安网备11010502040911