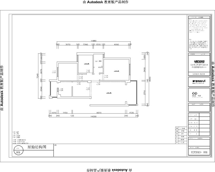
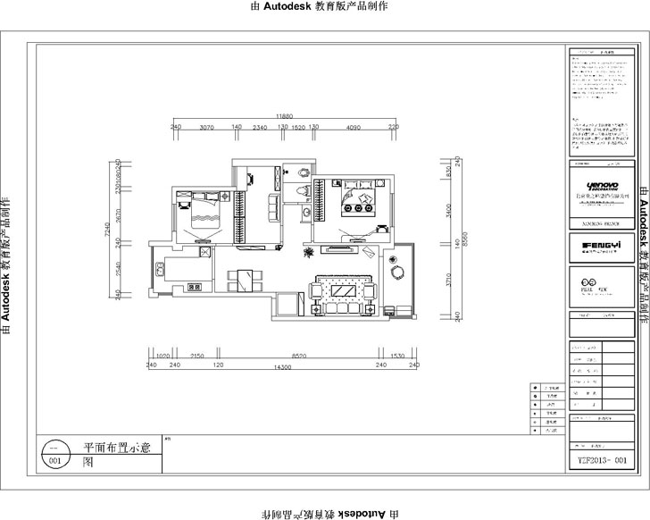
97㎡三居现代简约风格京东国际花园
发布时间:
2015年09月08日
小区:京东国际花园 面积:97㎡ 户型:三居 风格:现代简约风格
设计说明
此居室定位现代简约风格,采用暖色调,稳重大气,却又不失品味。最重要的是强调生活品质,在空间的设计上,尽可能的扩大空感,大气、稳重,满足居住的最佳舒适度。由于装饰元素少,以软装去营造居家空间,与现代风格的硬装完美结合,凸显美感。进门入户采用墙体空间做个内掏衣柜把储藏空间做开阔。
客厅



卧室





京公安网备11010502040911