220㎡五居新中式风格万科润园
发布时间:
2015年09月08日
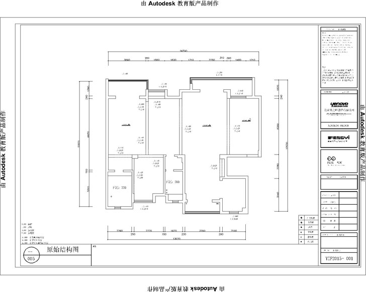
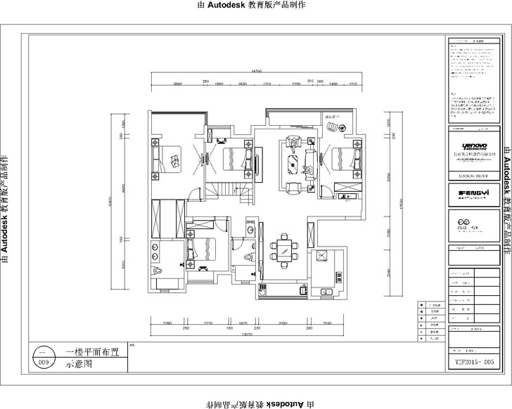
小区:万科润园 面积:220㎡ 户型:五居 风格:新中式风格
设计说明
此案例业主是一个夫妇带个小孩,小孩马上初中,业主想把空间做为中式,户型为顶楼的一个户型。层高为5米3.格局上可做现浇做两层来处理。业主 父母偶尔来南昌居住,所以楼下三房都需保留,楼上空间至做一个书房兼客房功能,做一个会客区,其余做储藏功能。采暖业主采用小松鼠地暖,空调采用格里中央空调。
客厅




卧室






京公安网备11010502040911