136㎡三居其他维多利亚
发布时间:
2015年09月10日
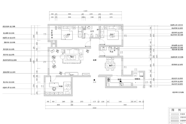
小区:维多利亚 面积:136㎡ 户型:三居 风格:其他
设计说明
本方案为三室两厅的户型,风格定向为简欧风格。居室中以局部造型和壁纸相结合,彰显出高贵典雅的气质,本案的设计重点是会客空间与门厅以及过道空间互通与走廊的仿古转,简单、大方而不失高贵的气质,电视背景墙用了壁画饰面,使整个空间显得更高雅;从设计手法上采用了先整体考虑后局部划分的设计手法。使各个空间得到了巧妙的衔接与统一。
客厅




阳台

玄关

餐厅





京公安网备11010502040911