140㎡三居其他公园首府
发布时间:
2015年09月10日
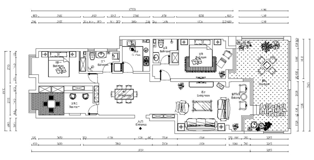
小区:公园首府 面积:140㎡ 户型:三居 风格:其他
设计说明
本案的设计风格为简欧风格,它没有欧式奢华华丽的表象,却有着欧式的优雅高贵,纯粹的色彩、纯粹的感受,总是那么不经意间爱上他的黑白分明、 时尚、深邃、留白、雅致、太多太多的词汇去形容她。在色调的选择上,整体为亮色调,红木和白的合理搭配,使空间显得非常舒适,四季皆宜的黑白灰装饰褪去了缤纷色彩,将简约与欧式化身为一种低调的奢华,平静不失深刻,在空间布局上遵循以人为本的设计理念,创造新空间,在室内设计原理中,采用局部跳跃色点缀,确实可以丰富空间感。简欧的设计语言,让所有人的眼前为之一亮,同时设计师还在空间上做了文章,整个空间的吊顶新颖时尚,且充分结合客户意思将具有中方特点的北斗七星运用与此,完美的将聚财之意溶于设计,餐厅的斜面垭口设计突破以往的中规中矩,客厅电视背景墙的应用和墙面石材的铺贴在材质上得到了对比。总揽整个空间,无一不体现艺术与时尚的结合。
客厅





卧室



餐厅





京公安网备11010502040911