92㎡三居其他阳光央玺
发布时间:
2025年10月28日
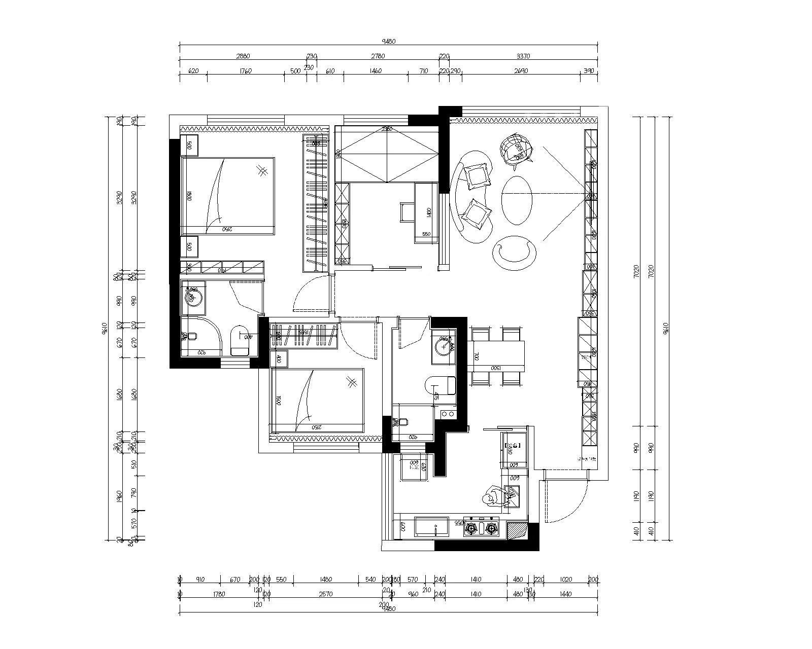
小区:阳光央玺 面积:92㎡ 户型:三居 风格:其他
设计说明
客厅运用深棕沙发、蓝色单人椅与多彩地毯的组合,搭配造型独特的灯具和艺术感十足的装饰画,复古中透着潮流活力。餐厅区域的圆形餐桌搭配色彩斑斓的餐椅,红色吊灯极具视觉冲击力,木质元素的融入又增添了一份温暖质感。厨房采用木色与米色橱柜的搭配,白色瓷砖墙面简洁干净,悬挂的黑色厨具实用且具设计感,营造出复古又现代的烹饪空间。
户型图

次卧室

主卧室

休闲区


餐厅

厨房


客厅







京公安网备11010502040911