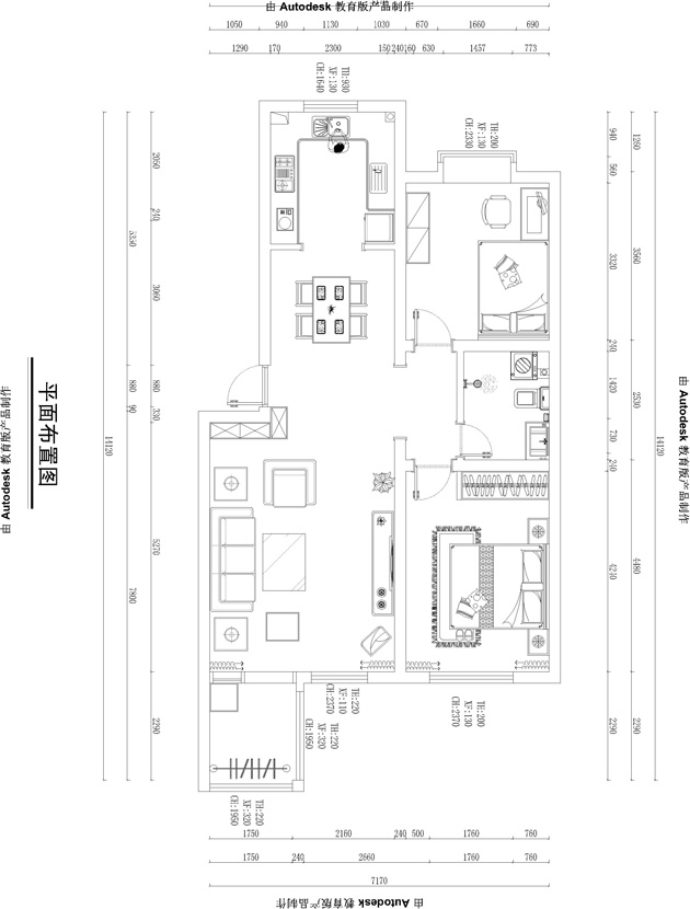
96㎡三居现代简约风格珠峰国际花园
发布时间:
2015年09月11日
小区:珠峰国际花园 面积:96㎡ 户型:三居 风格:现代简约风格
设计说明
设计说明摘要: 此设计方案定位为简约风格,居室中以局部造型和壁纸相结合,彰显出简约大气的气质,简单、大方而不失高贵的气质,电视背景墙用了护墙板饰面,使整个空间显得更简约大气,雅致高贵;从设计手法上采用了先整体考虑后局部划分的设计手法。使各个空间得到了巧妙的衔接与统一。
客厅





卫生间

餐厅





京公安网备11010502040911