89㎡三居现代简约风格力高国际城
发布时间:
2015年09月29日
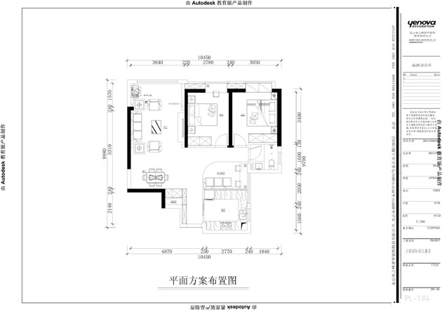
小区:力高国际城 面积:89㎡ 户型:三居 风格:现代简约风格
设计说明
业之峰南昌咨询热线:0791-86296016
该户型为中间户型,两房朝南为最大优势。但是厨房极小且客房几乎没有光线,因此,设计中作了两个调整:1、把客房及厨房之间的墙体全部拆除,重新组合拼
接,使得厨房使用面积得到很大提升,用墙裙及窗户作为隔断,让光线得以充分进入室内,更加加强了南北通透。2、客厅部分扩大至阳台部分,让出餐厅位置,同时通
过上下布置洗衣区的独特设计,使得阳台既具备洗晒功能又不失美感。
客厅










京公安网备11010502040911