141㎡三居现代简约风格西美70后院
发布时间:
2015年09月30日
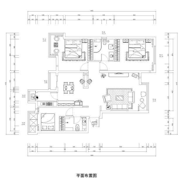
小区:西美70后院 面积:141㎡ 户型:三居 风格:现代简约风格
设计说明
此方案的风格倾向定位为现代雅致风格。业主崇尚清新时尚的现代雅致风格.通过与业主的深入沟通,本着轻装修,重装饰的原则,同时围绕着业主对房子功能的要求,合理的对空间进行了改造与功能划分。本案的设计重点是会客空间与门厅、餐厅以及过道空间互通与交流,从设计手法上采用了从墙面上的线与面衔接呼应,以及顶面的空间的虚拟划分。
户型图

客厅

玄关

餐厅

卧室







京公安网备11010502040911