北京
【切换】
整屋案例
家居美图
实景案例
装修现场
装修攻略
无数据
搜索
010-84934479
扫码快速拨号 >
扫码快速拨号
首页
效果图
设计师
装修现场
装修攻略
品质保障
了解业之峰
当前位置:
首页
装修图库
案例相册
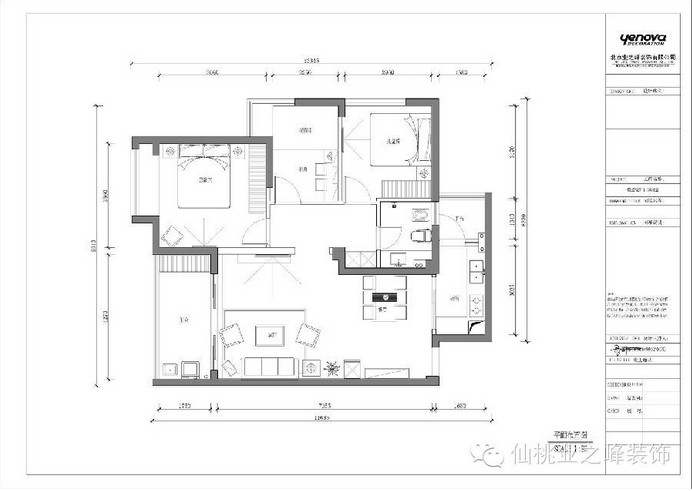
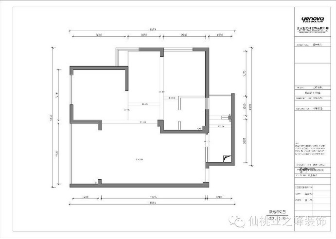
117.49㎡三居现代简约风格福星城
发布时间: 2015年12月25日
小区:福星城
面积:117.49㎡
户型:三居
风格:现代简约风格
设计说明
客厅
餐厅
设计说明
客厅
餐厅
本案设计师
业之峰专业设计师
免费咨询
我家装成这样多少钱?
㎡
获取报价
相关案例推荐
172㎡三居现代简约风格新希望锦麟天玺
查看详情
188㎡三居现代简约风格金泰观澜府
查看详情
116㎡三居现代简约风格南美韵城
查看详情
110㎡三居现代简约风格剑桥春天
查看详情
90㎡三居现代简约风格物产集团
查看详情
110㎡三居现代简约风格蔚蓝人家
查看详情
92㎡三居现代简约风格静德花园
查看详情
169㎡三居现代简约风格龙湖粼云天序
查看详情
143㎡三居现代简约风格保利天汇
查看详情
123㎡三居现代简约风格高科尚都
查看详情
140㎡三居现代简约风格邮电小区
查看详情
110㎡三居现代简约风格联发悦春山
查看详情
113㎡三居现代简约风格中交锦上
查看详情
98㎡三居现代简约风格逸璟天下
查看详情
135㎡三居现代简约风格中海河山郡
查看详情
137㎡三居现代简约风格国博新城
查看详情
108㎡三居现代简约风格国博新城
查看详情
181㎡三居现代简约风格西矿世席181
查看详情
118㎡三居现代简约风格万科揽境
查看详情
117㎡三居现代简约风格龙湖天璞
查看详情
展开
报价计算器
免费量房
免费设计
回到顶部