125㎡三居现代简约风格富力华庭
发布时间:
2015年12月27日
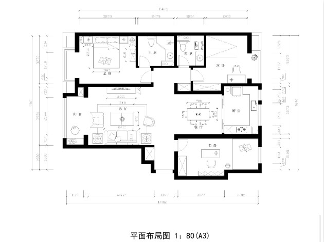
小区:富力华庭 面积:125㎡ 户型:三居 风格:现代简约风格
设计说明
业主是一对有想法、有准备、有激情的年轻夫妇,而且有一个非常时尚、通情达理的妈妈,跟他们接触时间久了,总会被女业主的孩提性格感染,所以整个家以明快色调为主,没有繁琐、没有累赘,尽情的表露了业主对家居环境的所有向往。
客厅



卧室

餐厅

书房





京公安网备11010502040911