142㎡三居现代简约风格巴黎一号
发布时间:
2015年07月27日
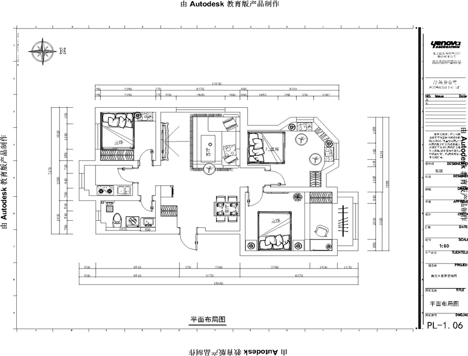
小区:巴黎一号 面积:142㎡ 户型:三居 风格:现代简约风格
设计说明
本案的设计风格为现代简约,营造简单、自然的空间。以简洁的表现形式来满足人们对空间环境那种感性的、本能的和理性的需求。
体现时代特征为主,没有过分的装饰,一切从功能出发,讲究造型比例适度、空间结构图明确美观,强调外观的明快、简洁。体现了现代生活快节奏、简约和实用,但又富有朝气的生活气息。
户型图

卫生间

客厅







京公安网备11010502040911