143㎡四居轻奢风格海棠三章
发布时间:
2025年12月31日
小区:海棠三章 面积:143㎡ 户型:四居 风格:轻奢风格
设计说明
本住宅设计以现代轻奢风格为核心,融合现代简约的功能性与轻奢风格的精致感,通过材质、色彩与光影的巧妙搭配,打造出兼具高级质感与舒适体验的居住空间,实现“低调奢华,简而不凡”的设计内核。
玄关利用大理石饰面与金属艺术雕塑打造端景,结合木饰面与金属线条的柜体设计,形成入户的第一重轻奢视觉体验;通透的隔断设计让玄关与客厅空间相连,保证了空间的延展性。
客餐厅背景墙采用大理石大板,自然的纹理形成视觉焦点;地面通铺柔光大理石,搭配金属线条与绒布弧形沙发,柔化硬朗质感的同时提升奢华度;嵌入式壁炉与悬浮式设计,让空间更具现代感与精致感。顶面采用无主灯+线性灯带的组合,结合弧形落地灯的局部照明,打造出明暗层次丰富的光影效果,凸显空间的轻奢氛围。
主卧以浅米色、浅灰色为主色调,软包床头背景墙搭配金属艺术挂件,弱化硬质材质的冰冷感;顶面弧形灯带与床头局部照明结合,打造静谧舒适的休憩氛围。木质纹理面板与绒布床品、金属摆件的组合,在简约的空间中勾勒出轻奢的细节,兼顾睡眠的舒适度与视觉的高级感。
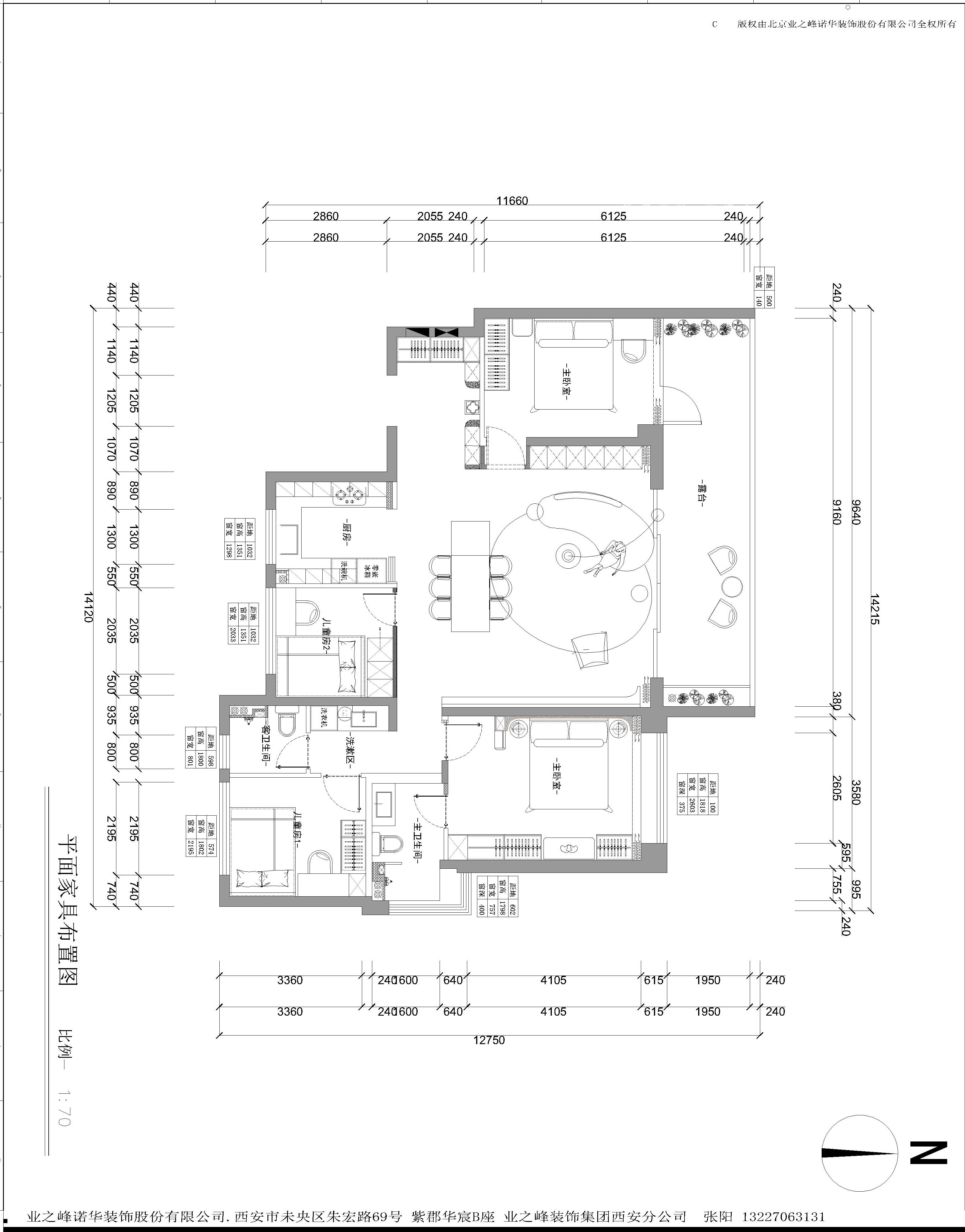
户型图

卫生间

厨房

玄关

客厅





京公安网备11010502040911