190㎡四居意式极简华润悦府
发布时间:
2025年12月31日
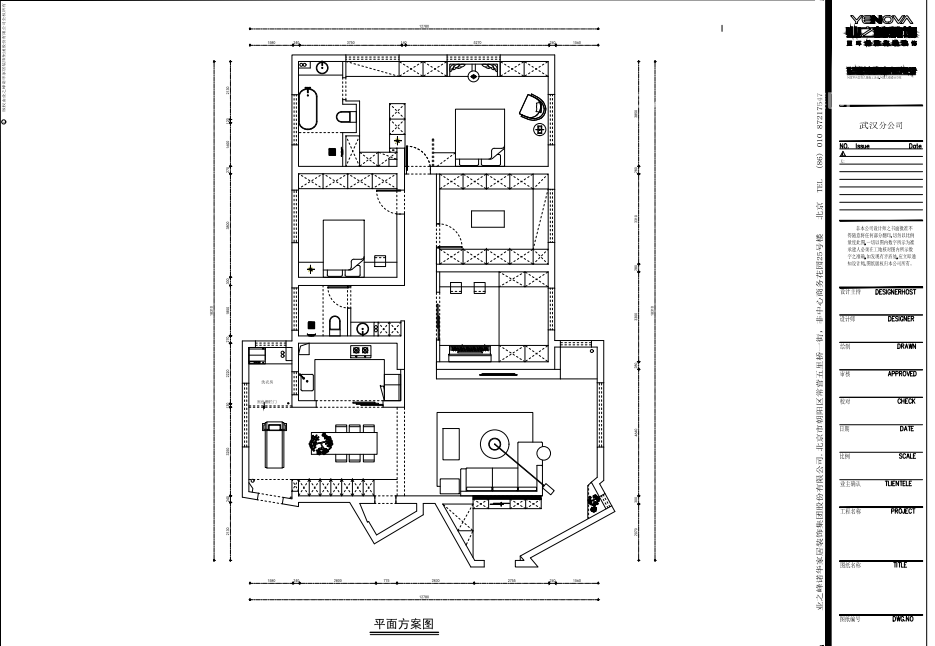
小区:华润悦府 面积:190㎡ 户型:四居 风格:意式极简
设计说明
本方案以意式轻奢风格为核心,打造优雅精致的居住空间。空间布局上,功能分区明晰,客厅采用大尺度设计,搭配轻奢质感的沙发与圆形艺术摆件,线条与精致软装凸显格调;餐厨区一体化设计,餐桌与橱柜选用高级材质,营造精致就餐氛围。卧室空间注重舒适与奢华的平衡,以简约线条的家具搭配精致软装,彰显意式美学的优雅。
整体设计通过高级材质、精致线条与艺术化软装的融合,将意式轻奢的优雅、精致与现代生活的舒适完美结合,打造出兼具品质感与艺术氛围的理想居所。
户型图

玄关

主卧室


书房

客厅


餐厅

衣帽间

厨房





京公安网备11010502040911