88㎡二居现代简约风格西仪102小区
发布时间:
2023年11月21日
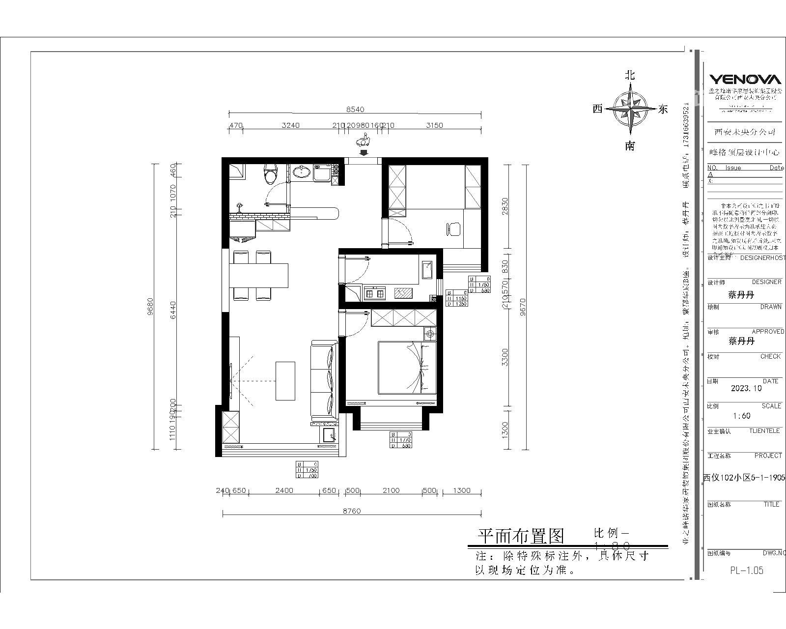
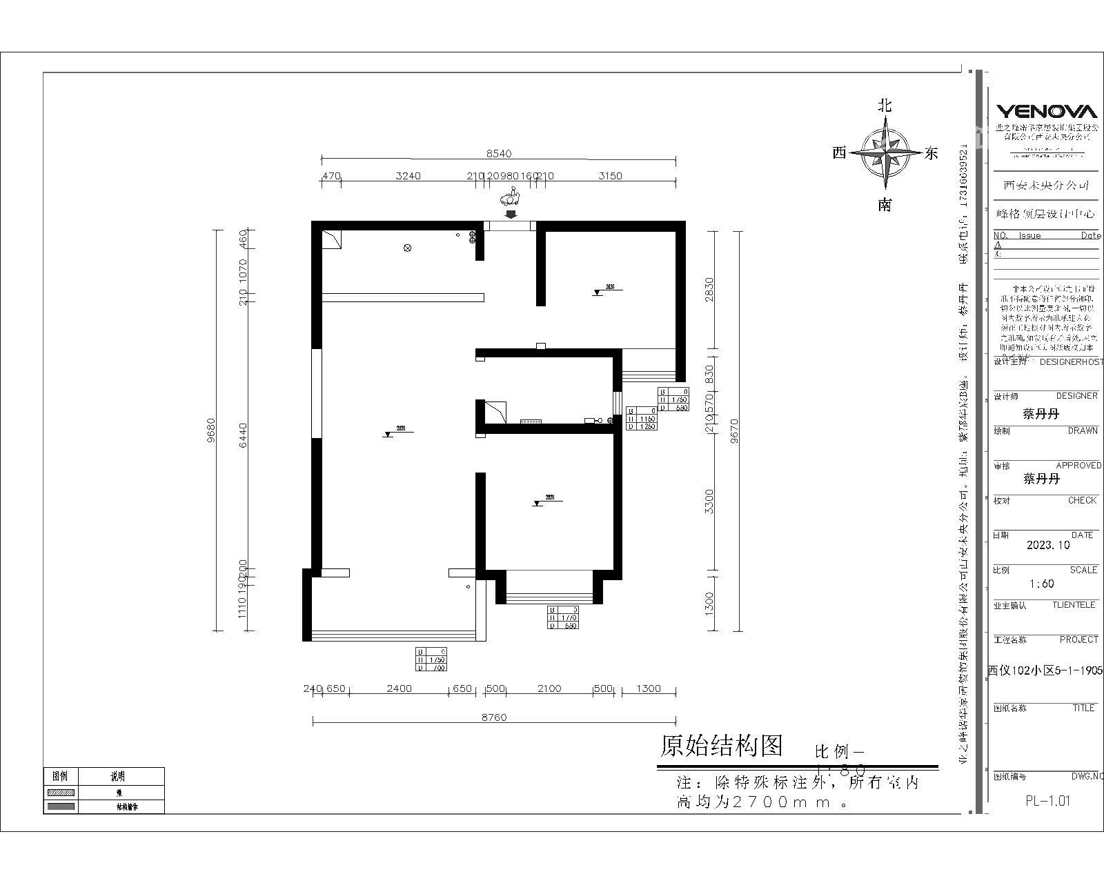
小区:西仪102小区 面积:88㎡ 户型:二居 风格:现代简约风格
设计说明
本案例属现代简约,入户处的墙面进行造型设计为点睛之笔,右手边的卫生间设计采用干湿分离,花色墙砖的搭配,使空间更加灵动,浴室柜右侧嵌入洗衣机,充分利用空间,浴室柜的对面,是入户的鞋柜,采用玻璃隔断进行视线上的舒适。
餐厅的木质家具使整体风格更加有质感,双开的冰箱满足储藏,客厅的设计也时尚大气,电视背景墙的一侧满足收纳,搭配浅咖色的单人沙发使空间更加明亮。
厨房储物空间充分,吊柜和地柜色彩统一,整体感受舒适。卧室的设计也充分发挥储物和学习的功能,整体色彩搭配舒适。
户型图


卫生间



次卧室

主卧室

厨房

客厅


餐厅

玄关





京公安网备11010502040911