120㎡三居现代简约风格学前师范家属院
发布时间:
2022年07月28日
小区:学前师范家属院 面积:120㎡ 户型:三居 风格:现代简约风格
设计说明
这是一套3室的小改善,客户是个老师。
整个户型原始拆改比较多,原始空间都比较狭小,利用率不高,动线也不够合理。
整个空间米白色乳胶漆贯穿全场,搭配极简装饰挂画,增强空间视觉感的同时,温馨感满满。
卧室没有做过多修饰,淡淡的色漆搭配极简木色家居,空间温馨感倍增。
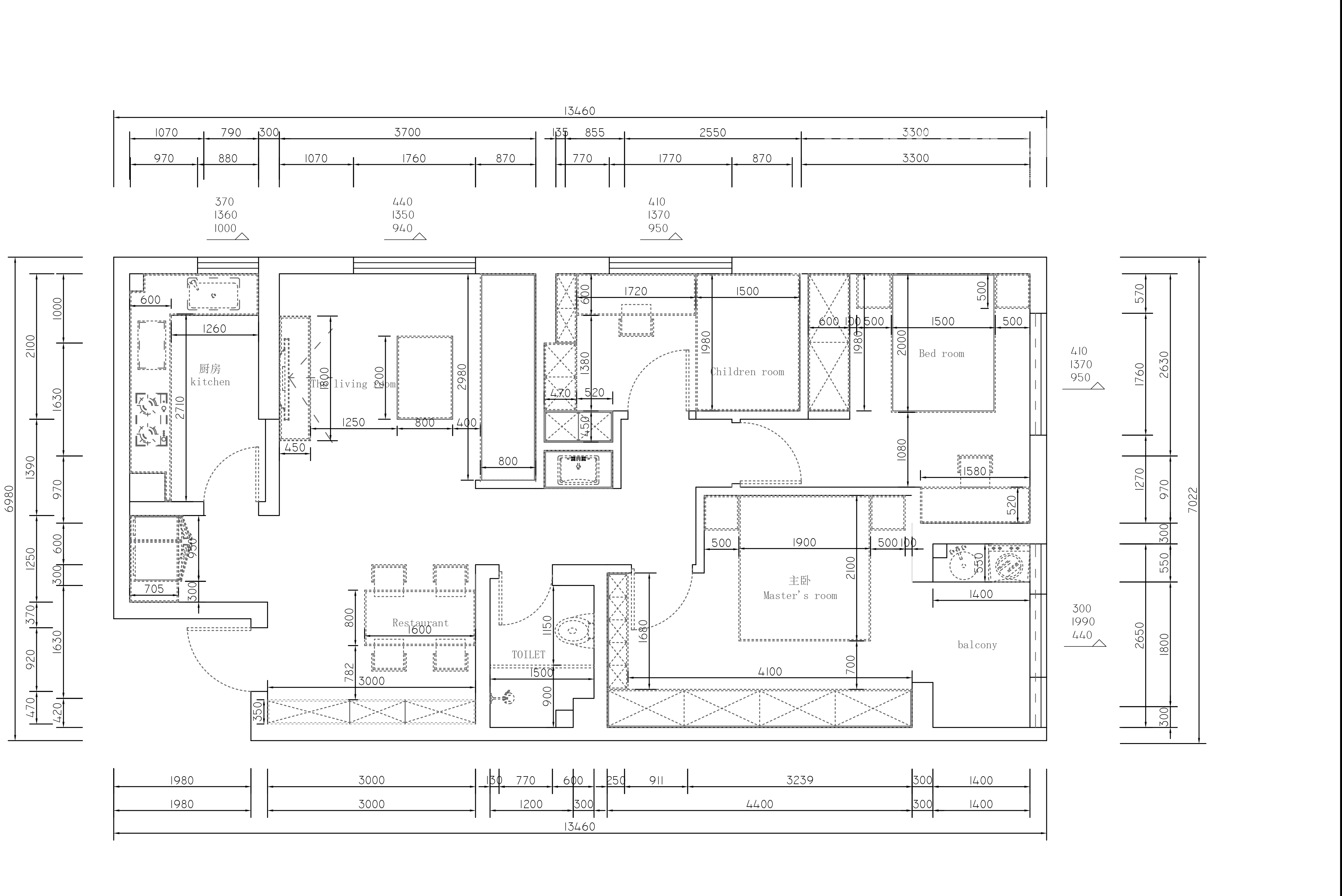
户型图

卧室



客厅



餐厅





京公安网备11010502040911