北京
【切换】
整屋案例
家居美图
实景案例
装修现场
装修攻略
无数据
搜索
010-84934479
扫码快速拨号 >
扫码快速拨号
首页
效果图
设计师
装修现场
装修攻略
品质保障
了解业之峰
当前位置:
首页
装修图库
案例相册
158㎡四居现代简约风格开源珑城
发布时间: 2022年04月12日
小区:开源珑城
面积:158㎡
户型:四居
风格:现代简约风格
设计说明
设计凸显整体的设计感,通过浅色调的运用、局部木制与大理石的点缀,营造出现代时尚的居家空间。
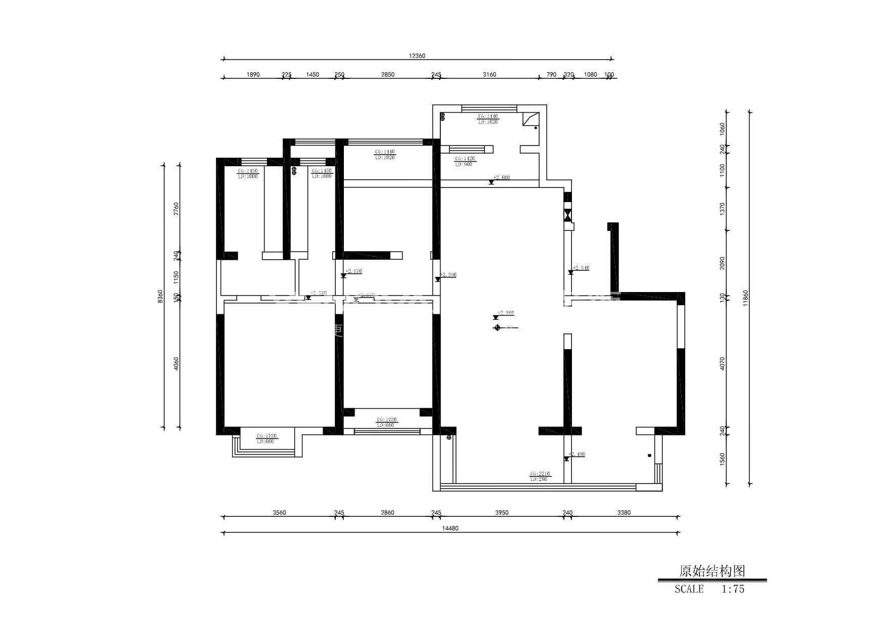
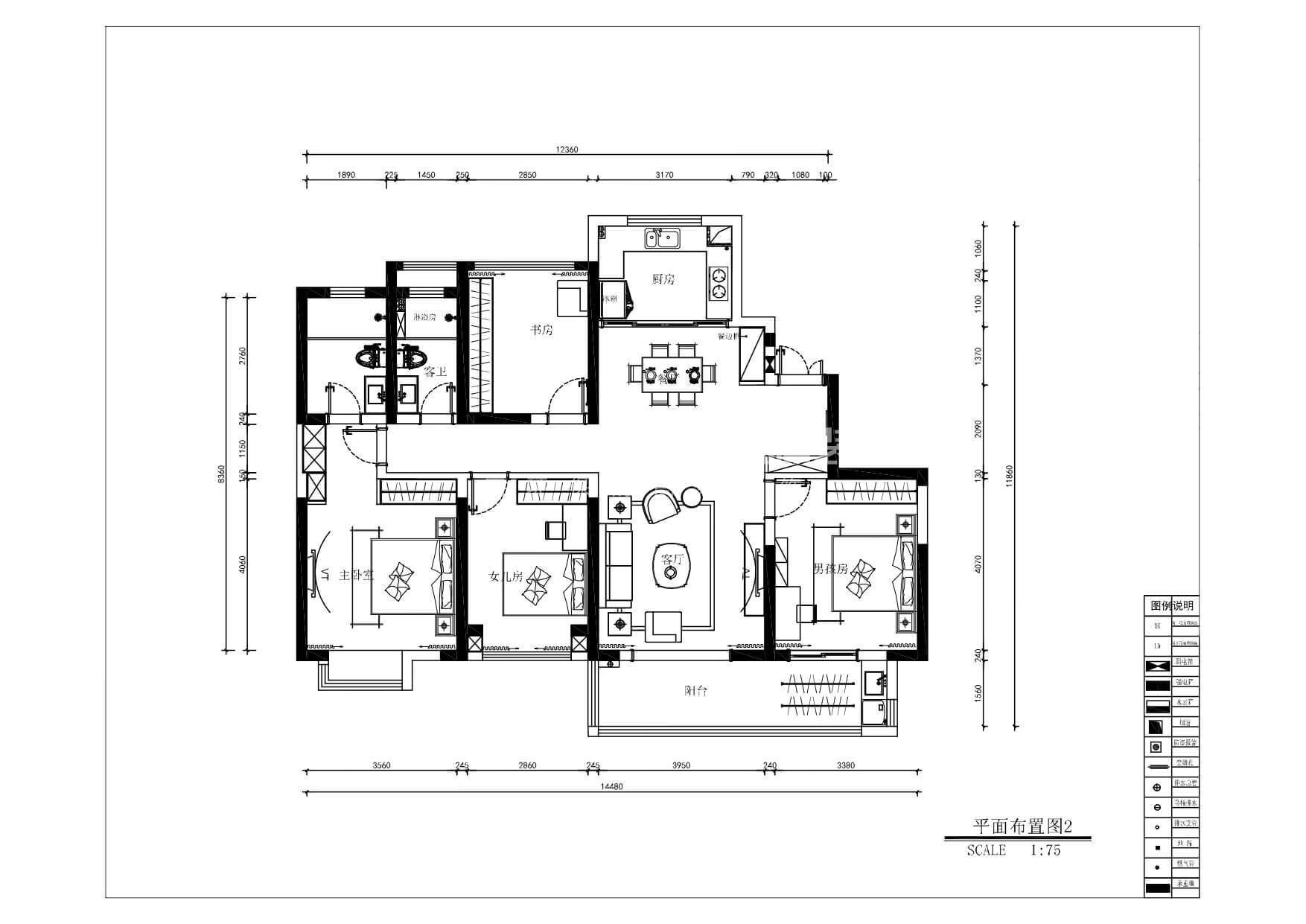
户型图
餐厅
客厅
设计说明
户型图
餐厅
客厅
本案设计师
尹聪
主任设计师
免费咨询
我家装成这样多少钱?
㎡
获取报价
相关案例推荐
152㎡四居现代简约风格万科东望
查看详情
143㎡四居现代简约风格大华海启东方
查看详情
150㎡四居现代简约风格雁熙云著
查看详情
134㎡四居现代简约风格栖悦府
查看详情
280㎡四居现代简约风格曲江九里
查看详情
134㎡四居现代简约风格栖悦府
查看详情
178㎡四居现代简约风格新鸿基悦城
查看详情
168㎡四居现代简约风格宇信·山水和院
查看详情
128㎡四居现代简约风格建业桂园
查看详情
150㎡四居现代简约风格中房蓝韵
查看详情
180㎡四居现代简约风格萨尔斯堡
查看详情
166㎡四居现代简约风格西派樘樾
查看详情
143㎡四居现代简约风格高新悦澜
查看详情
140㎡四居现代简约风格保利天汇
查看详情
150㎡四居现代简约风格EE康城
查看详情
160㎡四居现代简约风格吾悦首府
查看详情
151㎡四居现代简约风格北川万达
查看详情
160㎡四居现代简约风格润兰之城
查看详情
158㎡四居现代简约风格源利国际城
查看详情
146㎡四居现代简约风格绿城兰园
查看详情
展开
报价计算器
免费量房
免费设计
回到顶部