620㎡别墅新中式风格明悦山庄
发布时间:
2022年04月12日
小区:明悦山庄 面积:620㎡ 户型:别墅 风格:新中式风格
设计说明
本设计方案的业主是一位高贵优雅且时尚的女校长,男主人为设计行业知名公司董事,对设计要求极高,喜欢收藏中式家具和艺术品,喜欢看书,都喜欢安静,有极高的生活品味。
整体设计风格定位为新中式主基调,地下考虑以业主自己休闲放松和收藏为主,所以采用了禅意新中式的设计手法,
用线条勾勒的白描形式将意境烘托出;一层大厅考虑女业主的优雅时尚气质,采用了现代感的轻奢新中式基调,将香槟金属线条的时尚感与中式的古朴气质形成对比,同时纳入轻奢现代的客厅沙发与略带古朴的餐桌椅进行对比,形成有文化底蕴又不失现代气息的大厅风格。
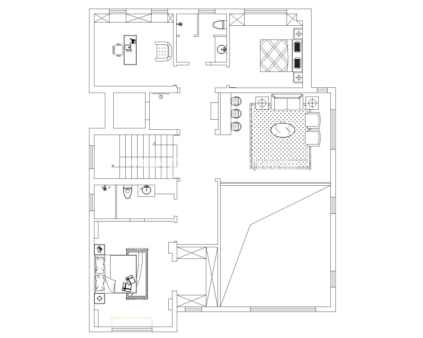
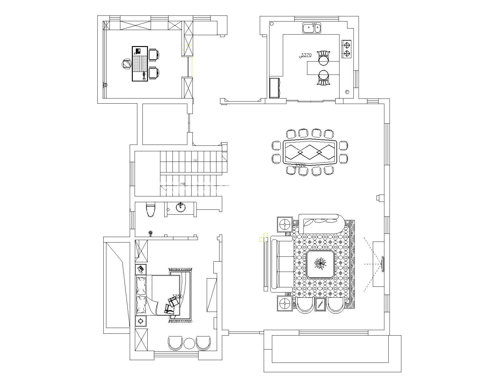
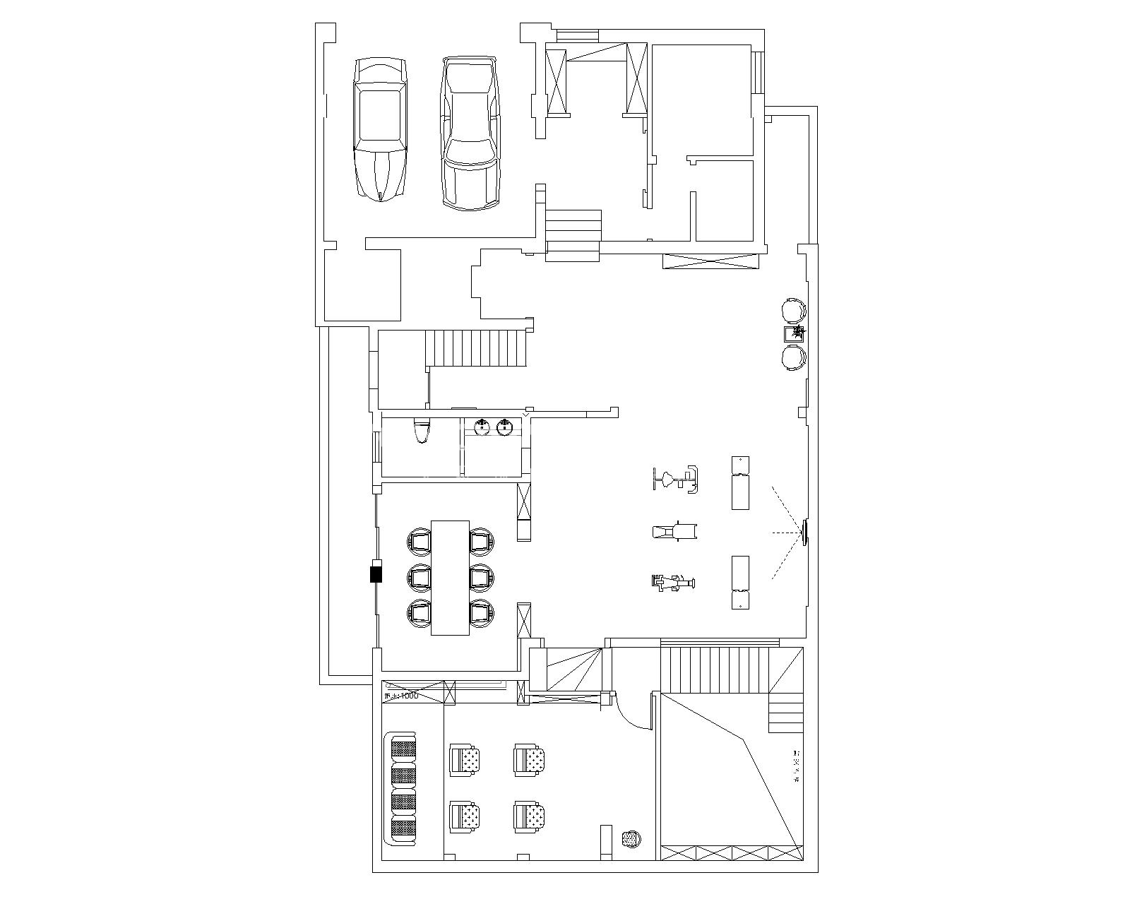
户型图



玄关

休闲区

餐厅

客厅

卧室

书房





京公安网备11010502040911