137㎡平层现代简约风格金汇瀚玉城
发布时间:
2022年04月10日
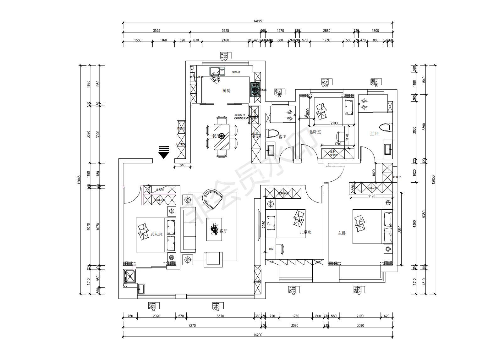
小区:金汇瀚玉城 面积:137㎡ 户型:平层 风格:现代简约风格
设计说明
装修简约风格的特色是将设计元素、色彩、照明、原
材料简化到最少的程度,但对色彩、材料的质感要求
很高。因此,简约的空间设计通常非常含蓄,往往能
达到以少胜多、以简胜繁的效果。
简洁、实用、省钱,是现代简约风格的基本特点。这
是因为人们装修时总希望在经济、实用、舒适的同
时,体现一定的文化品味。而简约风格不仅注重居室
的实用性,而且还体现出了工业化社会生活的精致与
个性,符合现代人的生活品位。效果图说明:
客厅装修作为待客公共区域,装修的时候主要以简洁
明快为主,同时装修和其他空间要更加明亮光鲜,通
常使用瓷砖为主。色彩主要以黑白黑为主,做简约北
欧风格为主。灰色显的更立体。吊顶做整体的区域划
分明确。增加了一些金属的线条感与流动性,体现更
加时尚的简约风格.
户型图

卫生间





京公安网备11010502040911