127㎡三居现代简约风格滨江雅园
发布时间:
2022年03月17日
小区:滨江雅园 面积:127㎡ 户型:三居 风格:现代简约风格
设计说明
业主是两人都是上班人员,对生活品质要求比较高,特别对环保要求比较高,要求至少保留3个卧室,2个卫生间,喜欢暖色调、现代风格,稍微带点轻奢,要求简单的设计,但是又不失整体的效果,储物一定要多。客厅电视背景墙采用岩板+展示柜,体现出了客厅的丰富;主卧室的背景墙相对比较简单,采用硬包的手法,体现出了卧室的温馨感。儿童采用主题墙布,让孩子充满想象力。
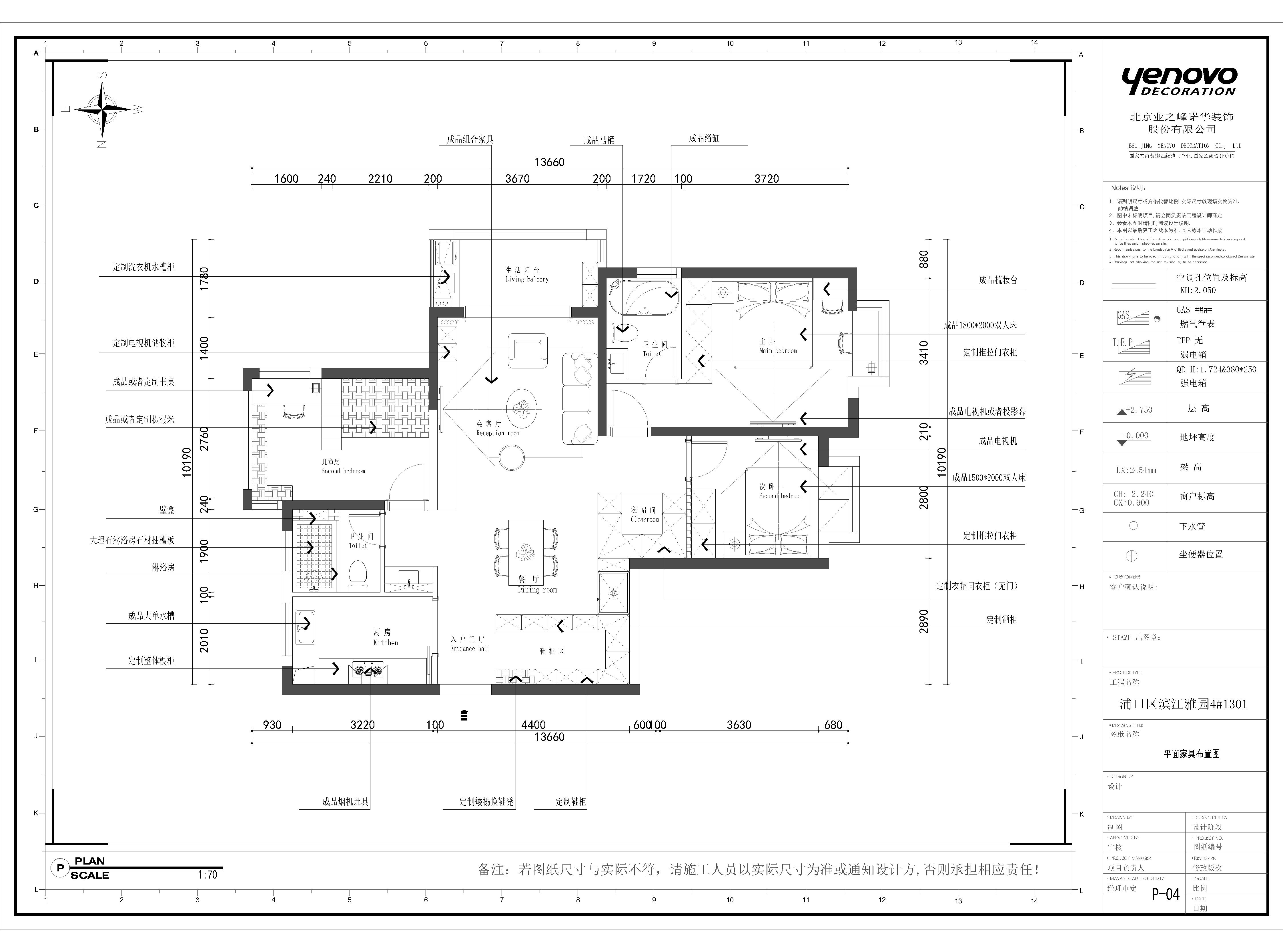
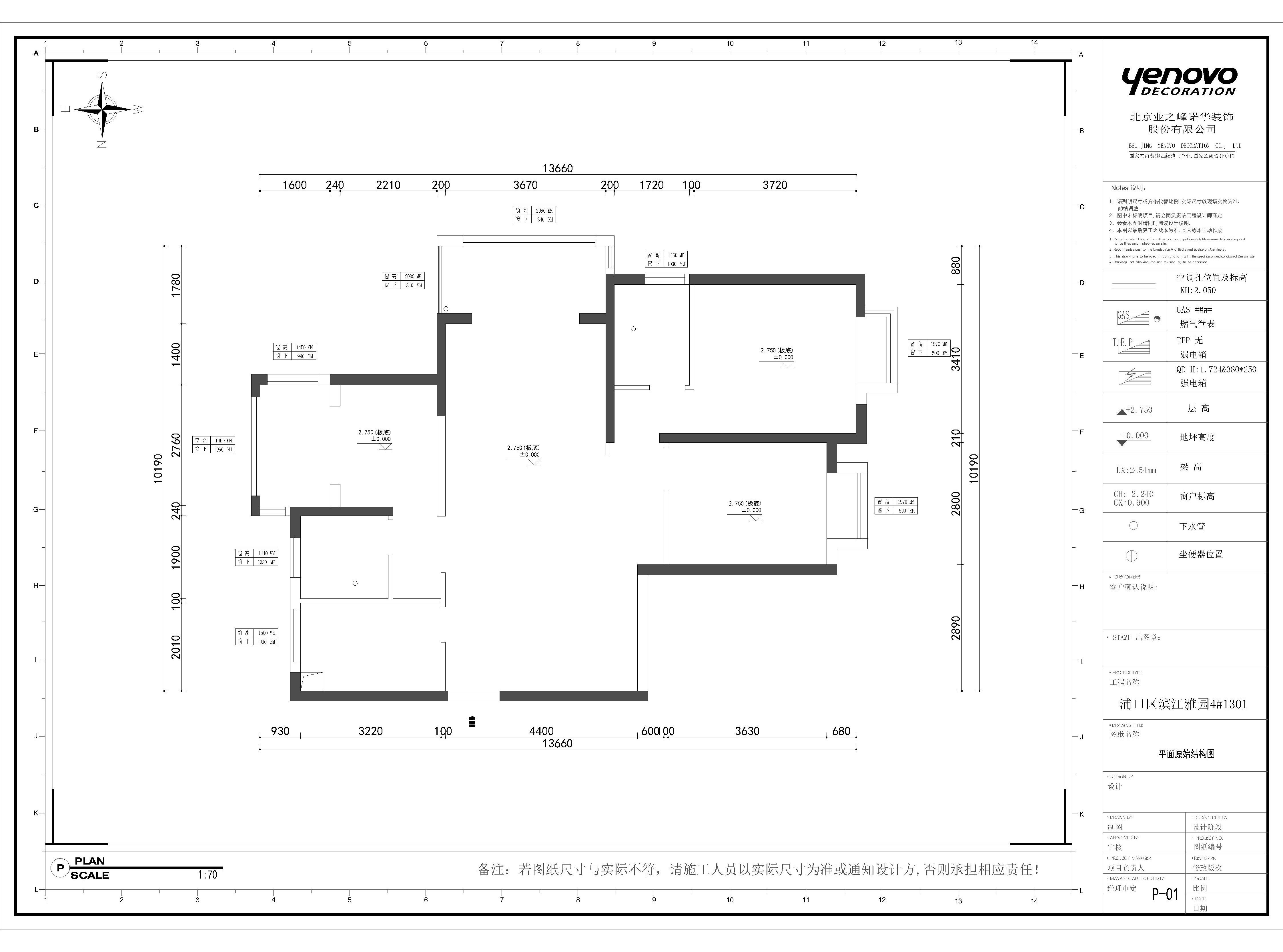
户型图


卧室



客厅






京公安网备11010502040911