120㎡三居现代简约风格安馨家园
                  发布时间:
                  2021年12月21日
                
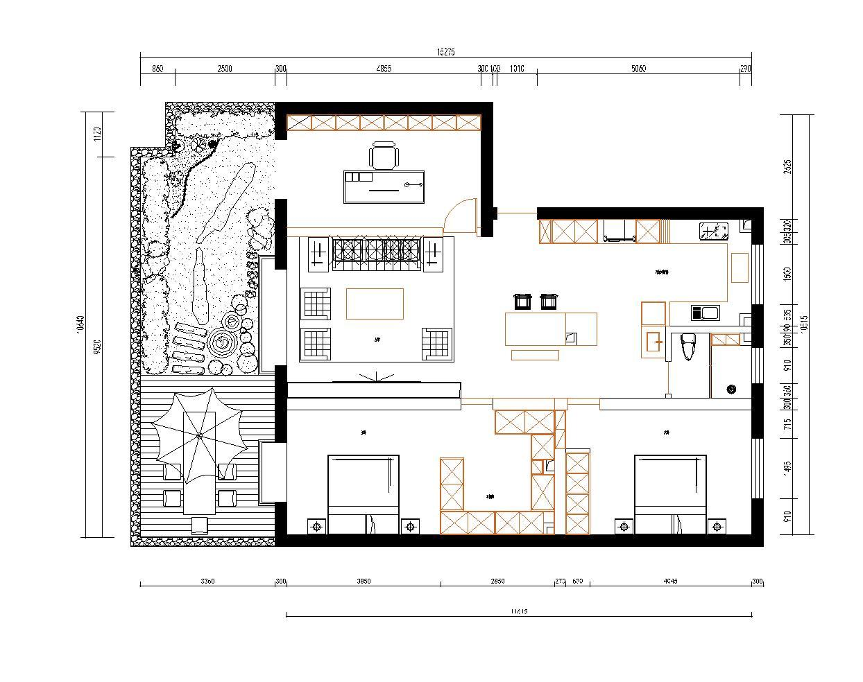
 小区:安馨家园 面积:120㎡ 户型:三居 风格:现代简约风格
设计说明
 本案是一套90后住宅的设计,住宅的功能空间齐备,不存在基础的功能缺失。但原始空间利用率和收纳性不高,餐厅,厨房面积紧凑,使用不是很舒适,主卧室原始空间,衣帽区面积鸡肋,反而成为整体空间的累赘,卫生间空间过长对于整体居住环境并没有产生实际意义上的提升,整个居住空间面积分配不合理,存在过多的无意义空间,反而造成家庭使用不舒服的感觉,主要的设计核心在于将功能空间的面积进行合理化分配。
户型图
 

客厅
 

卧室
 

餐厅
 

 


京公安网备11010502040911