110㎡三居其他碧华邻
                  发布时间:
                  2021年09月19日
                
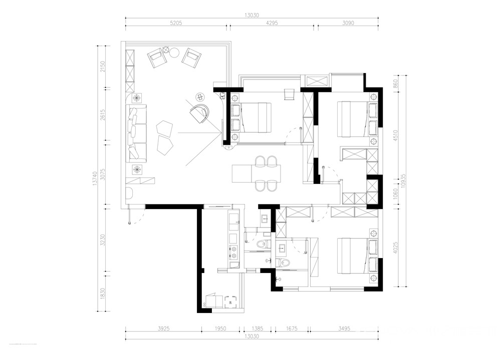
 小区:碧华邻 面积:110㎡ 户型:三居 风格:其他
设计说明
 此案业主买的是二手学区房,从设计来说既是一个挑战、也是一种创新,对于居住需求:三室两卫生间保留,原始结构客厅和餐厅的动线不合理、原始客厅飘窗利用率不高客厅没有阳台,原始结构的大阳台利用率也很低,针对这些问题通过结构的大乱重组,让整个空间获得了新生!
户型图
 
客厅
 



 
 


 京公安网备11010502040911
京公安网备11010502040911