161㎡四居现代简约风格金棕榈
发布时间:
2021年09月19日
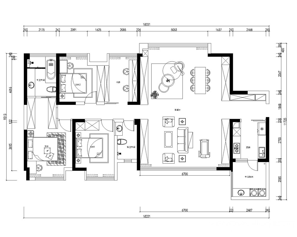
小区:金棕榈 面积:161㎡ 户型:四居 风格:现代简约风格
设计说明
此案客户为新婚夫妇。考虑到平时办公需求预留一间书房。避免夜晚工作时打扰对方休息。为还未出生的小孩预留一间儿童房。考虑到父母临时的租住也预留了一间房间。客户对客餐厅吊顶要求较高。不想把大客厅分割成小块。设计上考虑无主灯设计,把客餐厅融为一体。用灯光区分区域。主副客体满足客户会客和单独看书休闲作用 单独规划了健身区。
户型图

客厅







京公安网备11010502040911