135㎡三居轻奢风格天地源·万熙天地
发布时间:
2021年09月09日
小区:天地源·万熙天地 面积:135㎡ 户型:三居 风格:轻奢风格
设计说明
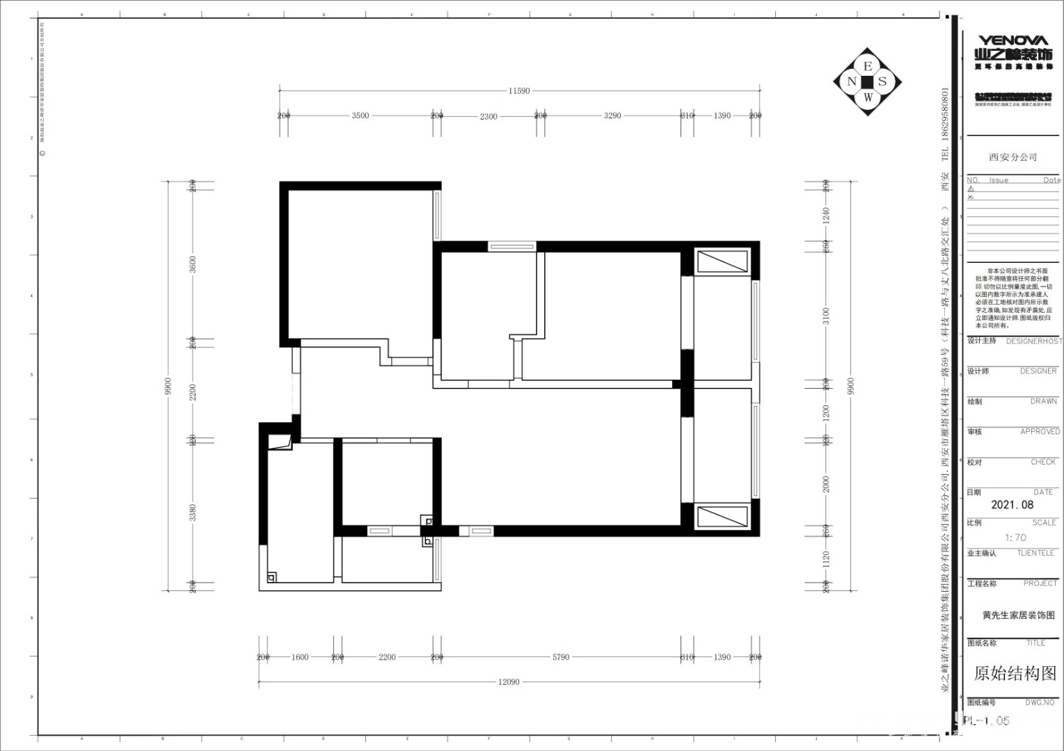
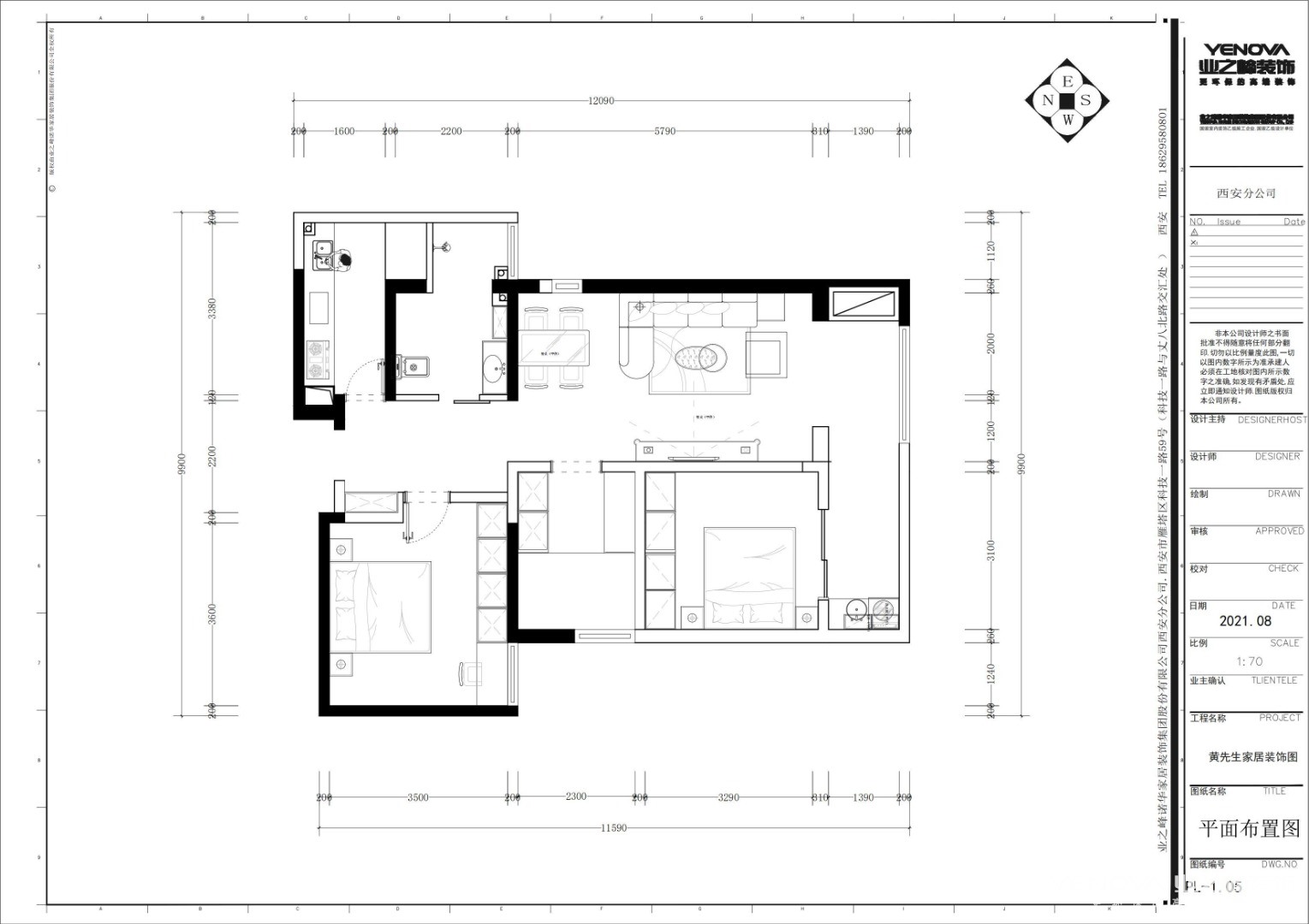
本案为一家三口在一起生活,偶尔会来客人。客户要求时尚,大量的储物空间来摆放杂物,要有给客人留宿的房间。合理的拆除了大量墙体来重新划分空间,并且在原始的机构上增加了一个房间作为客卧供客人留宿并且作为储物空间,使阳台更宽阔,客餐厅融为一体更加温馨。
户型图

客厅





卧室





京公安网备11010502040911