115㎡三居轻奢风格传世温泉公馆
发布时间:
2021年08月20日
小区:传世温泉公馆 面积:115㎡ 户型:三居 风格:轻奢风格
设计说明
取其精髓,奢华贵气,与端庄秀丽相结合,打造轻奢主义风格,不限制于任何装修元素与色彩,经过自行创新,让空间氛围更加多元化,摒弃了过多的约束,摆脱了沉闷的装修格局,让空间更加开放,让户外美景更好的得到融入。
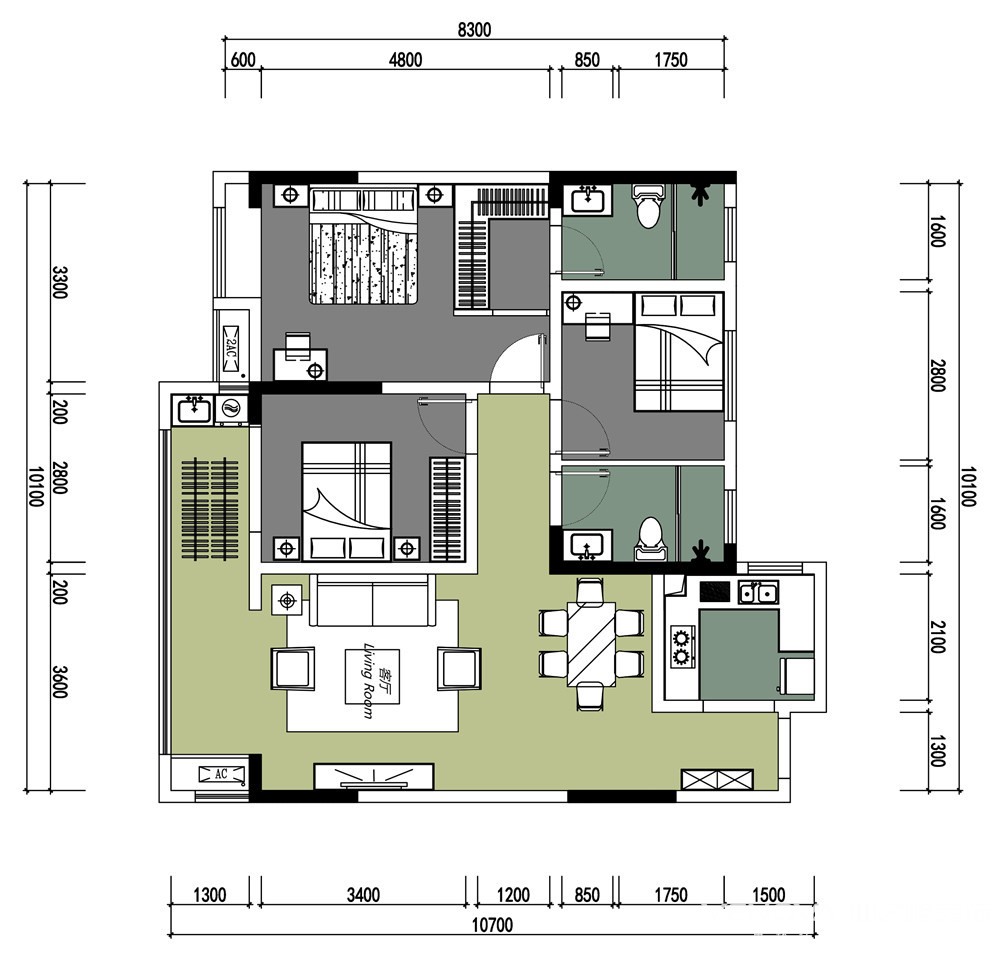
户型图

客厅



卧室



取其精髓,奢华贵气,与端庄秀丽相结合,打造轻奢主义风格,不限制于任何装修元素与色彩,经过自行创新,让空间氛围更加多元化,摒弃了过多的约束,摆脱了沉闷的装修格局,让空间更加开放,让户外美景更好的得到融入。






