222㎡三居轻奢风格天和苑
发布时间:
2021年07月29日
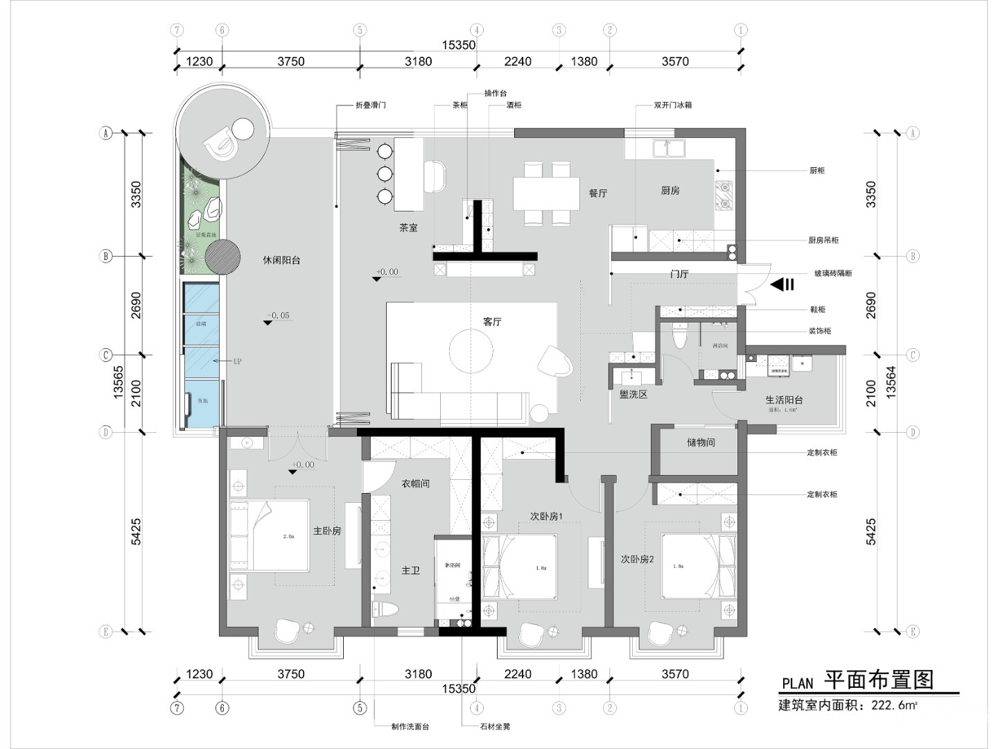
小区:天和苑 面积:222㎡ 户型:三居 风格:轻奢风格
设计说明
:这是一套邻水的住宅,实际面积222.6平,是一个需要翻新的房子。业主需要打破以往的布局
,营造一种新的生活氛围。所以在项目定义上是是为居者营造一个蕴含东方美学沉稳简约而慵懒静谧的
品质空间。
我们在原结构允许的情况下将客厅与阳台打通了,客厅空间更开阔,也形成开放式的茶水间,一眼望见
窗外江景。在空间的动线上我们形成了“回”型的开放空间,客餐厅、茶室的开放格局形成一个整体的
无界方厅,在材质的使用上,高级灰木纹墙板、金属材质与玻璃材质的相互交错使用,使空间稳重且不
失大气,休息的氛围更加温馨。
卧室氛围将直接影响居住者的心情,在卧室的设计中我们采用了浅色的硬包墙面与原木色的木饰面连贯
,只为打造一个温馨又不失复杂的休息空间。
户型图

客厅





餐厅


书房

卧室







京公安网备11010502040911