137㎡四居轻奢风格德胜公馆
发布时间:
2021年07月29日
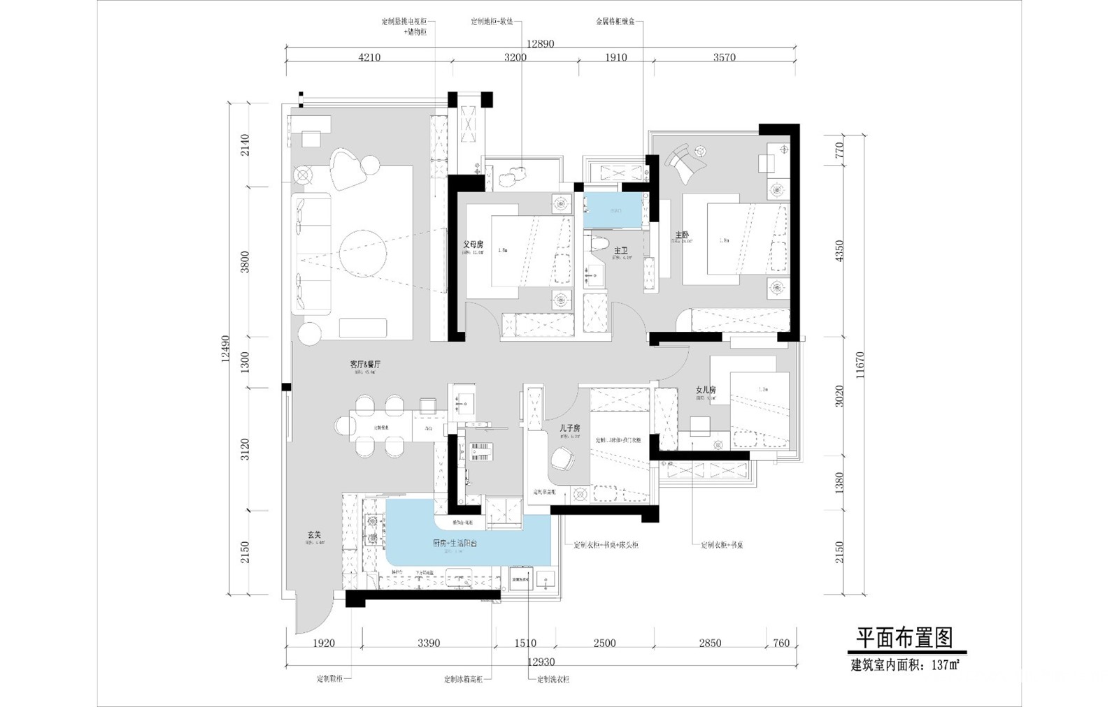
小区:德胜公馆 面积:137㎡ 户型:四居 风格:轻奢风格
设计说明
业主简介:五口之家
户型结构:四室两厅
设计思路:案整体的风格没有过多的修饰,注重和谐的视觉感官。以高级灰基调为设计主题,利用线条
凸显现代时尚感,并且营造出低调内敛的空间氛围。屋主对于细节的高要求也更加敦促我们在设计过程
中不留余力的严苛与细致
客厅整体色调以高级灰主,色彩独有的视觉感赋予了空间沉稳且略显冷静的气质,金属独有的光泽使空
间稳重且不失大气,沙发与桌椅线条感十足,不仅提升了客厅的艺术感,也为空间带来了更加丰富的层
次变化。 清新自然的绿植,不仅提供了舒适的用餐环境,也让用餐的氛围更加温馨。
卧室的主色调与客厅相呼应,黑白灰的强烈对比使空间显得沉稳与大气。墙面上放置的装饰画与空间色
彩和谐统一,同时强调了空间线条美和装饰的艺术。
户型图

餐厅

玄关

卧室

卫生间

客厅








京公安网备11010502040911