220㎡复式轻奢风格保利心语花园
发布时间:
2021年06月22日
小区:保利心语花园 面积:220㎡ 户型:复式 风格:轻奢风格
设计说明
挑高的设计,使空间尺度被无限延伸放大。对于年轻一族来说,简洁、大方是映入眼帘的第一印象,而温暖、愉悦、充满生活气息的品质生活,才是他们真正的需求所在。客厅通过一些精致的软装元素来凸显质感,从而彰显了一种高品质的生活方式。
餐厅设计上不满足于千篇一律的家居色调,在时尚简约的现代轻奢氛围中,为空间注入一抹优雅、高贵的蓝色,一方面用于调节气氛,另一方面也能营造出休闲、轻松的用餐环境。水吧台区别于一般的奢华设计,整个空间既没有过于繁复的造型,亦没有丰富色彩的叠加,而是以一种直撩心底的优雅魔力,给人带来轻松舒适、温馨大气的感觉。
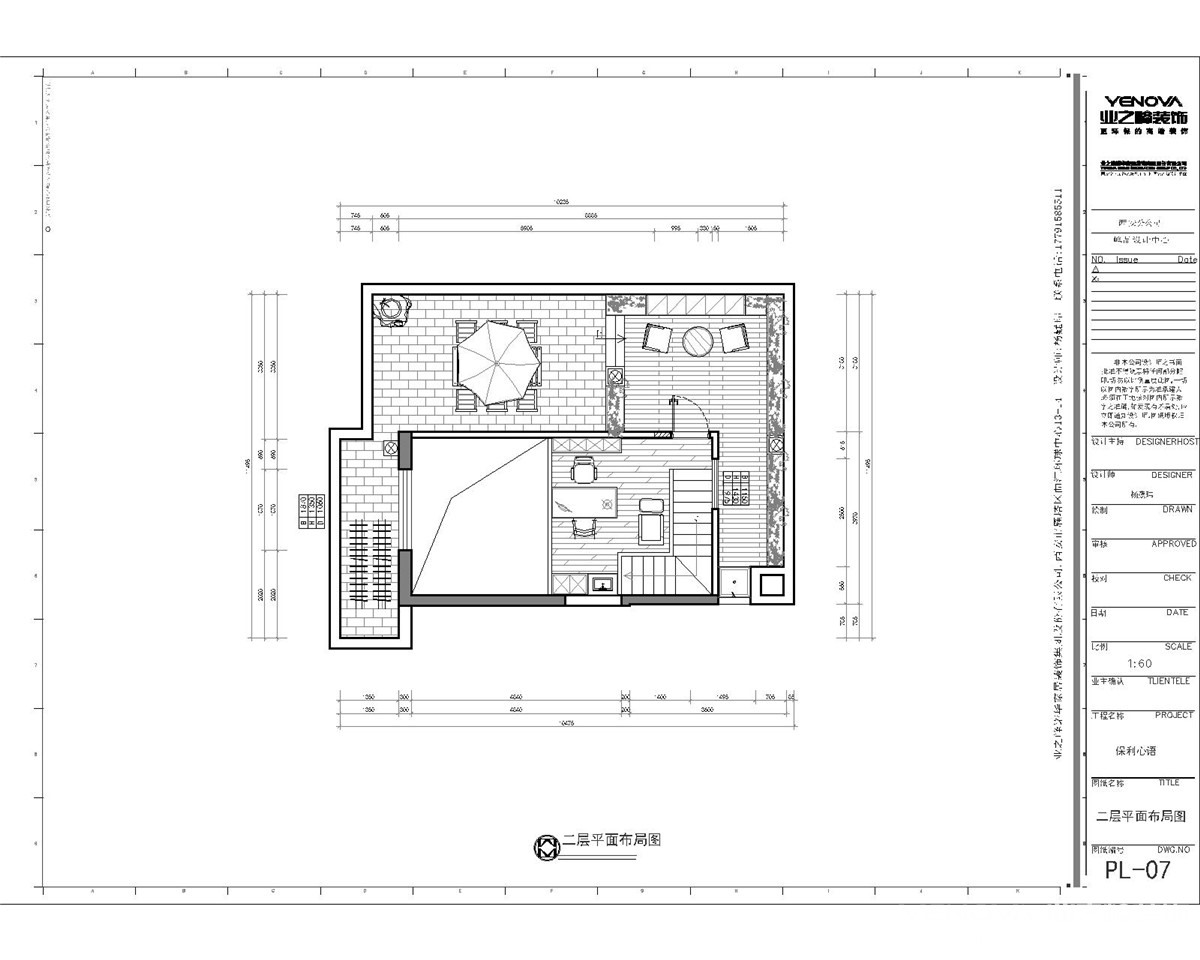
书房随着空间格局的调整,设立在二楼,开放式书房加上二楼挑空,让整个空间更加宽敞明亮,带来更好的视觉感受。
在卧室,你能找到到“奢侈、生活、品味、享受”之间的平衡,,整体比例和谐,造型精炼,通过细节和色彩造型、勾勒出一个精致优雅的休息空间,彰显低调与浪漫。
卫生间沿用深色简约的思路,大面积灰色的墙地面,浴室柜选择浅色用来做颜色上的差别,干湿分离设计让卫生间更整洁通透。
在色彩选择上,本案选用浅色作为主色调,选用带有高级感的中性色,黑色、碳灰色等深色调搭配,令空间质感更为饱满,在反光材质上,如玻璃、丝绒、镜面等元素中,将华丽的格调最大化彰显。
在这套设计中,采用轻奢的现代风格。用简单的线条,金属饰品的应用更能增加房屋的现代感,再加上色彩的搭配与跳跃,整体给人的感觉舒适实用,可以凸显整体的干净风格与现代感。
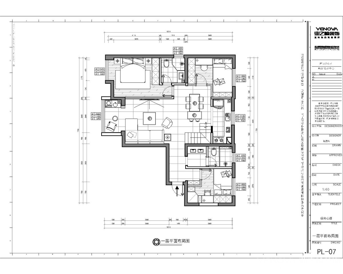
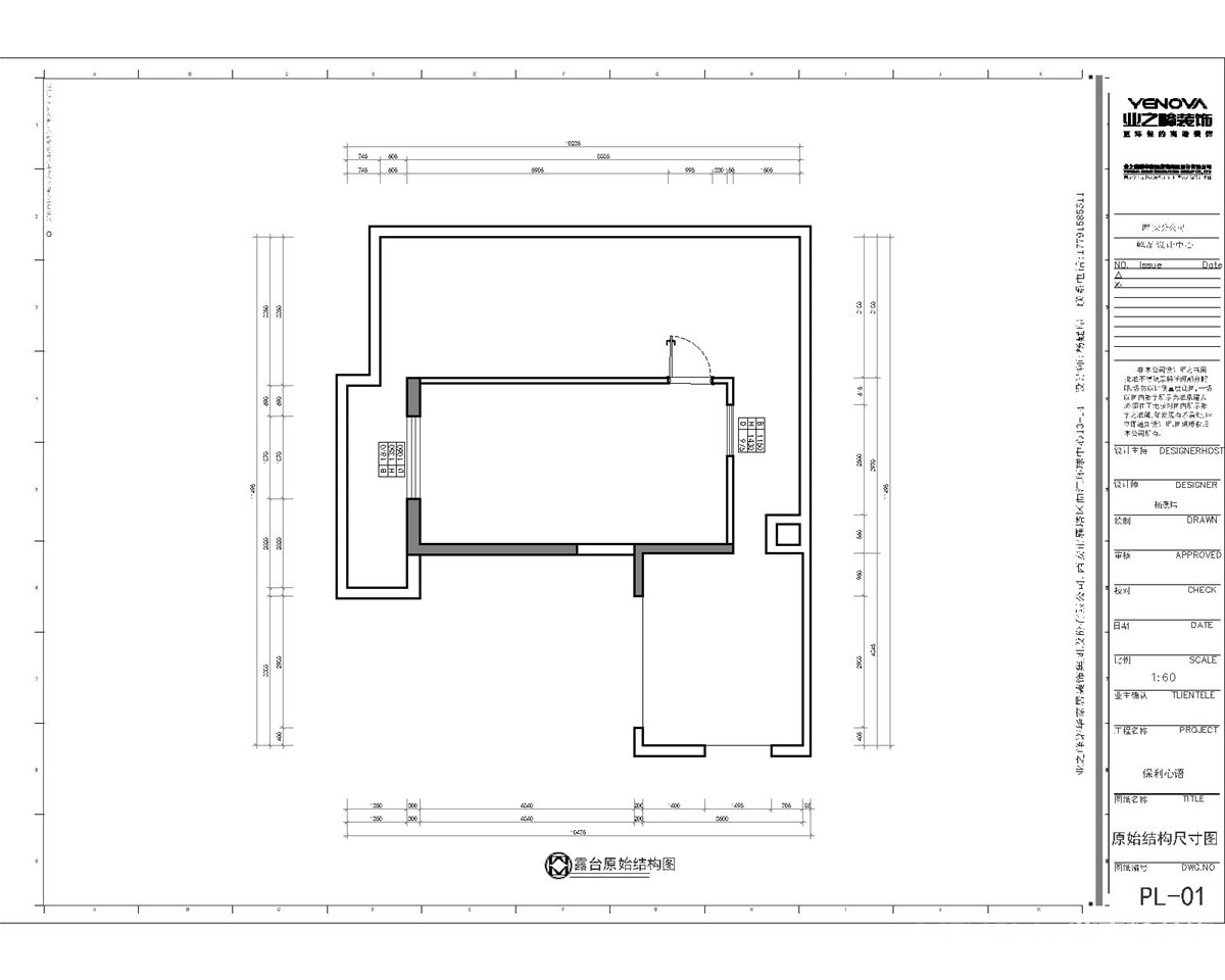
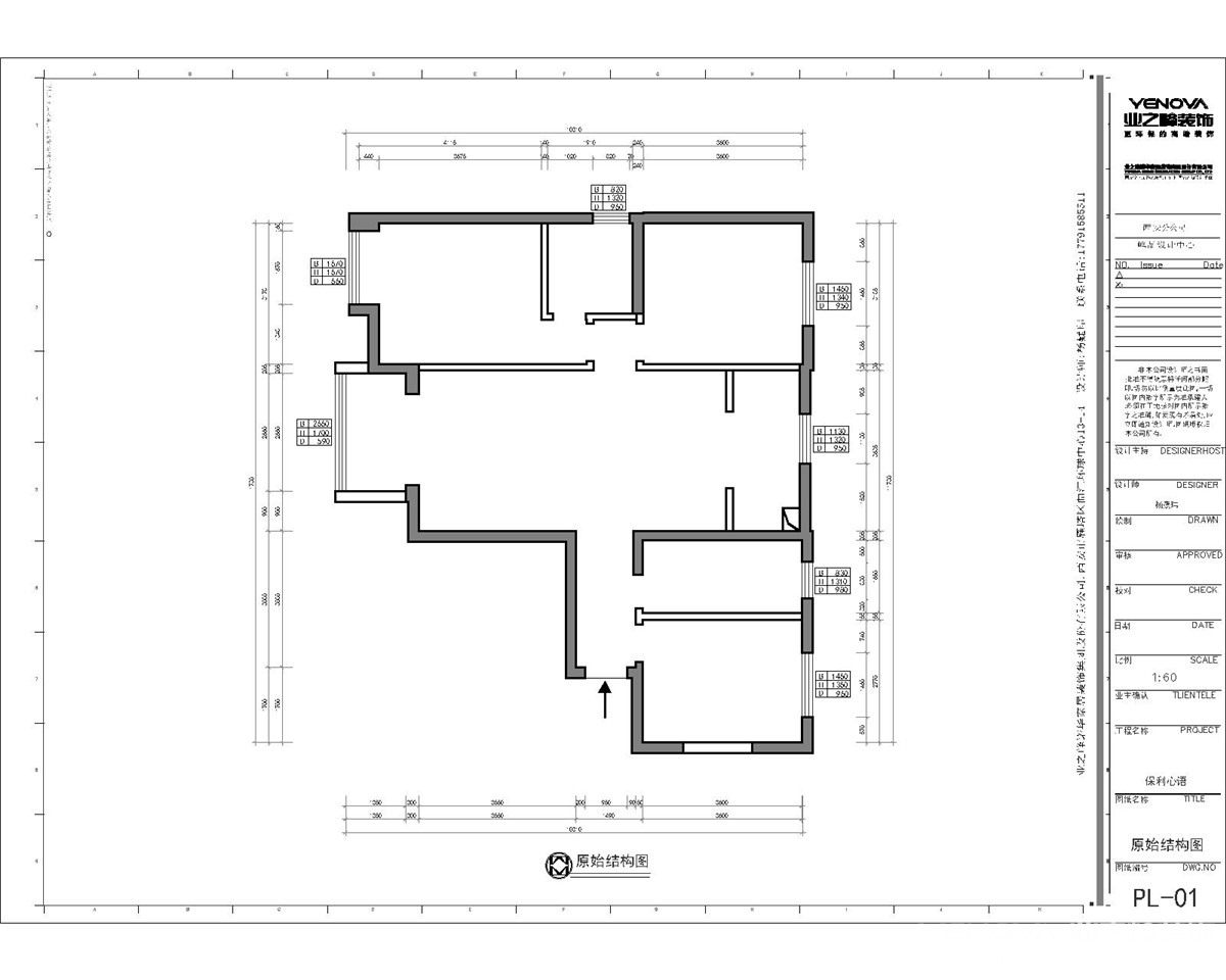
户型图

卫生间

卧室


休闲区

客厅






书房





京公安网备11010502040911