210㎡复式轻奢风格梦溪岸
发布时间:
2025年10月30日
小区:梦溪岸 面积:210㎡ 户型:复式 风格:轻奢风格
设计说明
通过理性几何线条与自然材质的碰撞,打造兼具艺术感与实用性的空间。设计摒弃繁复装饰,以大理石、胡桃木、磨砂皮革等质感材料奠定沉稳基调,搭配金属线条与抽象艺术摆件点缀精致细节;开放式布局强化空间通透感,隐藏式收纳与无主灯灯光系统提升生活效率;色彩上以米白、灰调为主:整体呈现意式设计独有的优雅张力——在克制的极简轮廓下,隐藏着对品质生活的深刻洞察与人文关怀。
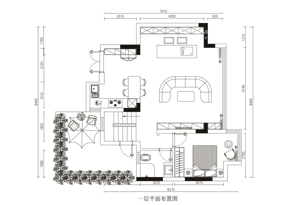
户型图


休闲区

卧室




客厅



主卧室

衣帽间

书房





京公安网备11010502040911