256㎡复式轻奢风格天府壹号
发布时间:
2025年11月22日
小区:天府壹号 面积:256㎡ 户型:复式 风格:轻奢风格
设计说明
户主为中年夫妻,有一个孩子,是他们的第三套房子,属于改善型住房,希望设计出来新颖且不易过时,整体大气显得有质感,平时会接待一些亲朋好友。主卧要大套房,独立衣帽间,有两个孩子,要考虑平时学习环境,平时要练钢琴。
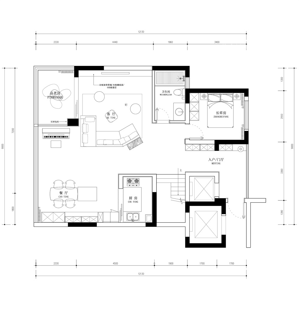
客厅
客厅以大尺度布局容纳钢琴,成为艺术与社交的双重场景,浅棕与灰色系家具搭配大理石地面,既显大气又能适配亲友聚会的多元氛围。
玄关
玄关的层叠灯光+奢石背景、客厅的电子壁炉与大尺寸电视墙等设计,既通过造型与材质的创新体现新颖感,又以中性色调与简约线条确保风格不过时。
主卧
以米灰为主色调,通过双床头背景墙(浅棕与深灰)、艺术挂画与个性灯具塑造高级感,独立衣帽间满足收纳需求,整体设计简约大气,契合中年夫妻对品质独处空间的要求。
儿童房
孩子的卧室以清新绿为主色,搭配弧形造型与趣味灯具,营造童趣又不失质感的成长环境;同时,全屋预留安静的学习角落(如卧室或书房区域),通过空间的动静分区,保障孩子专注的学习氛围。
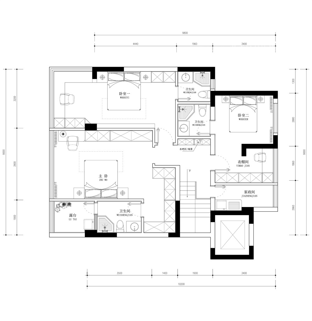
户型图


客厅

次卧室

主卧室

餐厅





京公安网备11010502040911