145㎡四居轻奢风格曲江风景线
发布时间:
2021年06月11日
小区:曲江风景线 面积:145㎡ 户型:四居 风格:轻奢风格
设计说明
经过与客户沟通得知,客户偏轻奢风格。其取自自然的柔和色彩。更加贴近现在年轻人所追求的闹中取静、自然舒适。在选材中多选用木质麻料包边工艺,加入了一些碎花工艺,在空间的每一处都透露出一丝古老文明的气息。在空间中以米色为基调更凸显了空间所带来的舒适、平和。玄关做了一个的圆顶,让整个空间笼罩在时尚却不缺少稳重的氛围里,精致而不喧闹。
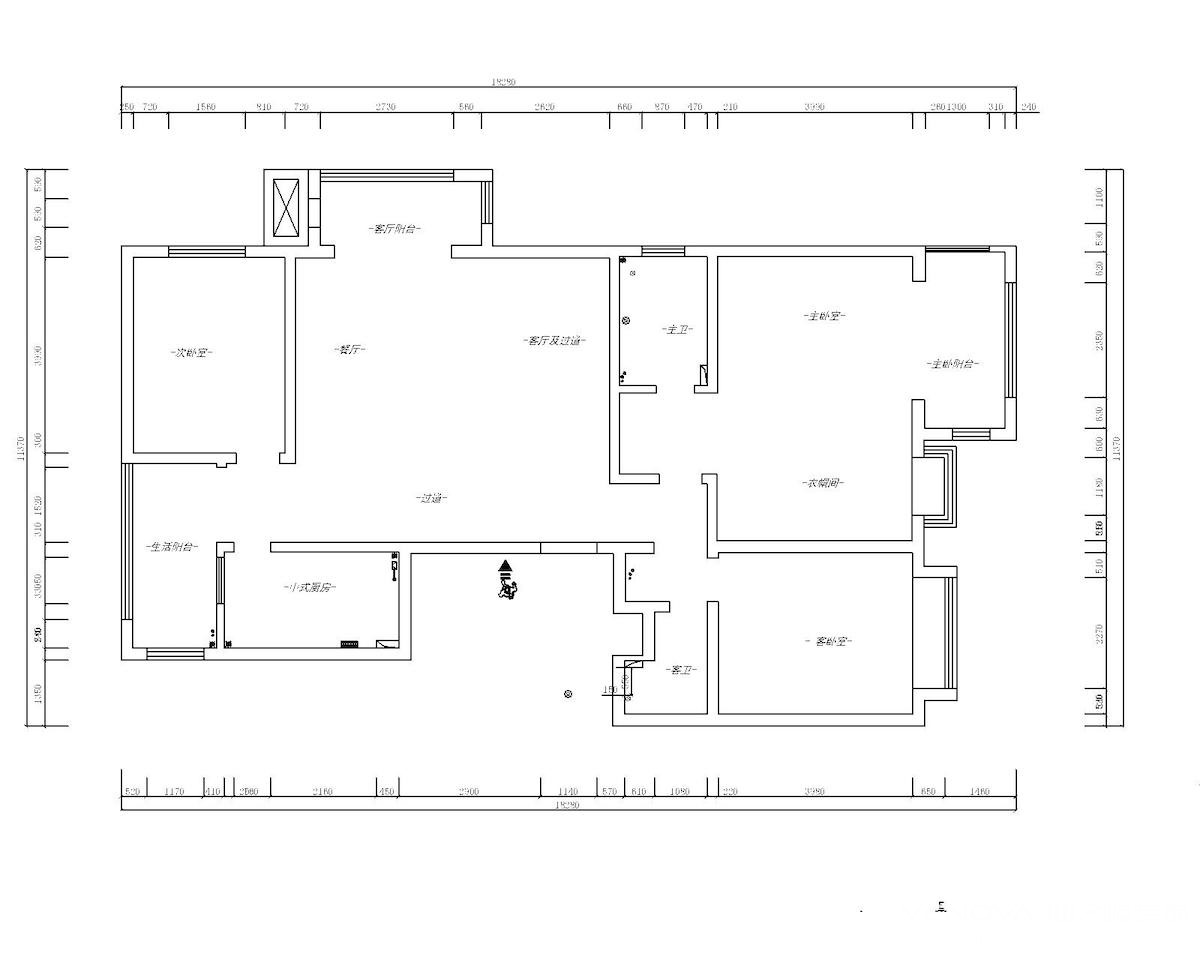
户型图

客厅



玄关





京公安网备11010502040911