112㎡三居轻奢风格未来城市
发布时间:
2021年06月11日
小区:未来城市 面积:112㎡ 户型:三居 风格:轻奢风格
设计说明
本案为现代轻奢风格,客餐厅区域划分合理,色彩搭配上采用了大面积留白辅以浅棕色、奶灰色,整体很温馨干净。金属感是本案的点睛之笔,增加情趣。
在地面上,使用灰调的大地砖将整个空间通铺,使得空间视觉感官大气通透,惭怍餐椅和客厅整体风格同色系,同时加入千鸟格的元素,增加生趣,背景墙使用藕粉色,形成对比,简单大气。
主卧空间,采用莫兰迪蓝和浅咖色的碰撞,彰显着业主的品味。床头背景墙采用了硬包造型显得端庄稳重,床头的吊线灯增加了情趣。吊顶的一圈灯线,增添了空间的丰富性。
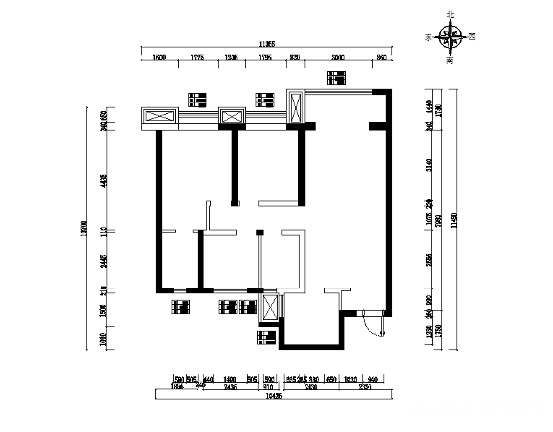
户型图

卧室

客厅


餐厅






京公安网备11010502040911