195㎡三居轻奢风格金地曲江尚林苑
发布时间:
2021年06月11日
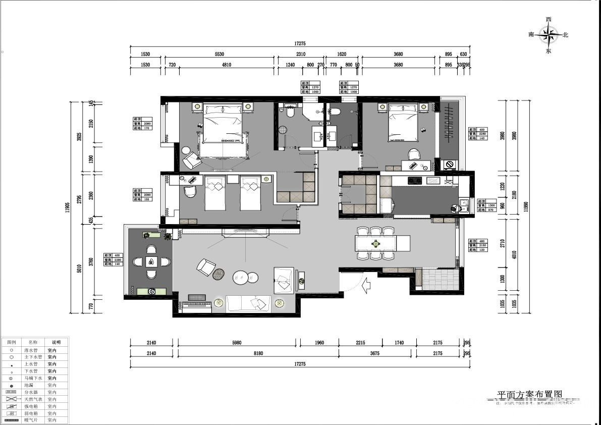
小区:金地曲江尚林苑 面积:195㎡ 户型:三居 风格:轻奢风格
设计说明
本案设计以现代轻奢为主题,生活偶尔需要远离闹市的烦嚣,寻找安闲自在的环境。以现代风格为主,构筑简约的奢宅轻调,于浮华喧嚣处抽身,追寻心的净土。将空间具化为实用与美学交织相融的生命体,赋予空间艺术、雅致而奢华的生活氛围。
主卧整个空间强调色彩的沉静和造型线条的简洁,搭配木色元素,宽敞明亮。简洁干净的块面和线条,用简单的方式营造出空间的温暖与惬意。背景墙是一个盒体,浅色的地板和白色的柜体,秉持着开放性、互动性的原则。灰与金,具有强烈的视觉指引,在灯光下渲染出空间的张力。
户型图

玄关

客厅



卧室

餐厅

儿童房





京公安网备11010502040911