136㎡三居轻奢风格大华铂金瑞府
发布时间:
2021年03月07日
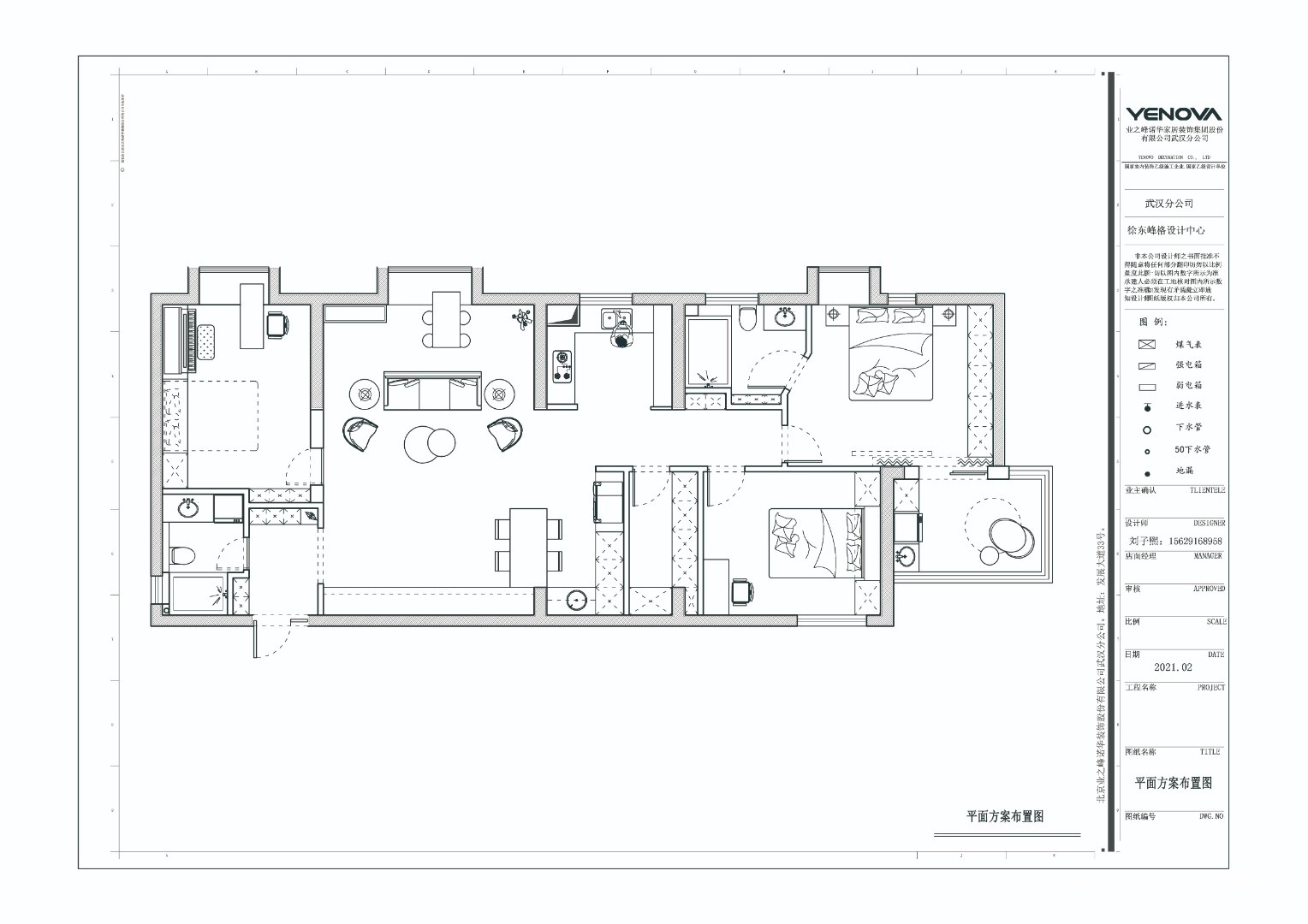
小区:大华铂金瑞府 面积:136㎡ 户型:三居 风格:轻奢风格
设计说明
本案的主题为现代简约风格,业主坦言是受了电影的影响,对装修的颜色产生了颠覆性的认知,并且希望在整体房子面积不大的情况下呈现出他想要的感觉。所以此案在色调选择上,白色为主调,黑色,灰色,原木色为辅调,颜色凸显干净、温馨,相辅相成,缺一不可。而在此案例中原先的户型南北通透,光线采光俱佳,所以在实际功能的需求性方面并没有去做大刀阔斧的改造。简约利落的电视柜造型与空间整体风格相互呼应,是现代简约定调的设计家居中,不可或缺的重要元素。开放式厨房让整个空间更显大气,不至于整个家装空间的走道过于狭长,产生压抑感且影响采光。在案例中,以咖色等暖色的陈设艺术品来营造大气、自然、简约的装饰美学氛围。墙面、地面、家具陈设等均以简洁的造型、精细的工艺为其特征,强调品质感和细节处理。
户型图

客厅



书房

卧室


餐厅





京公安网备11010502040911