180㎡三居轻奢风格融创中心
                  发布时间:
                  2020年12月28日
                
 小区:融创中心 面积:180㎡ 户型:三居 风格:轻奢风格
设计说明
 本案女业主对于设计感要求很强,但对于格局来说不希望做太大调整,所以如何在原有格局下通过设计来体现房屋得质感就是设计师得首要问题,在与业主沟通后,整体定色调为深色低奢质感,呈现客户得品质感。
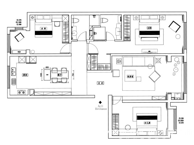
户型图
 
客厅
 


卧室
 
餐厅
 

本案女业主对于设计感要求很强,但对于格局来说不希望做太大调整,所以如何在原有格局下通过设计来体现房屋得质感就是设计师得首要问题,在与业主沟通后,整体定色调为深色低奢质感,呈现客户得品质感。






