200㎡复式新中式风格绿地美湖
发布时间:
2020年10月24日
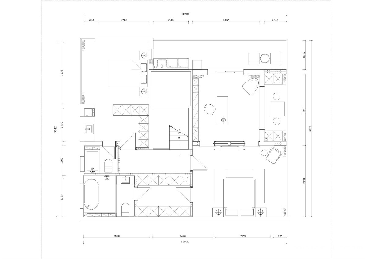
小区:绿地美湖 面积:200㎡ 户型:复式 风格:新中式风格
设计说明
新中式风格的魅力,是安静淡然、清新素雅的,不接纳过多的喧闹,也不顺从固定的套路,它在延续典雅的同时又将时代特性加入其中,从而衬托出主人的文化气质。拥抱现代生活,将东方气质大隐隐于工艺材料及配色的交感呼应中成就东方感、现代家中式元素融入到现代简约让空间变得清新优雅引领现代年轻人将传统文化结合到住宅创造出富有内涵的未来东方雅奢居住空间追求极致的品质细节的设计与把控让客户从点滴之处感受到并为之向往的高品质生活方式。
户型图

客厅





餐厅

卧室





京公安网备11010502040911