230㎡复式现代简约风格桃源漫步
发布时间:
2020年08月11日
小区:桃源漫步 面积:230㎡ 户型:复式 风格:现代简约风格
设计说明
本案例为跃层,常住人口为一家三口,客户并不喜欢过于繁琐的设计,一切都以实用为主。客餐厅方面,在电视背景墙与沙发背景墙上采用相互呼应的造型设计,使得原本并不对称的墙体变得和谐起来。加上跳色的些许点缀,整体给人沉稳又不乏活力的视觉感受。
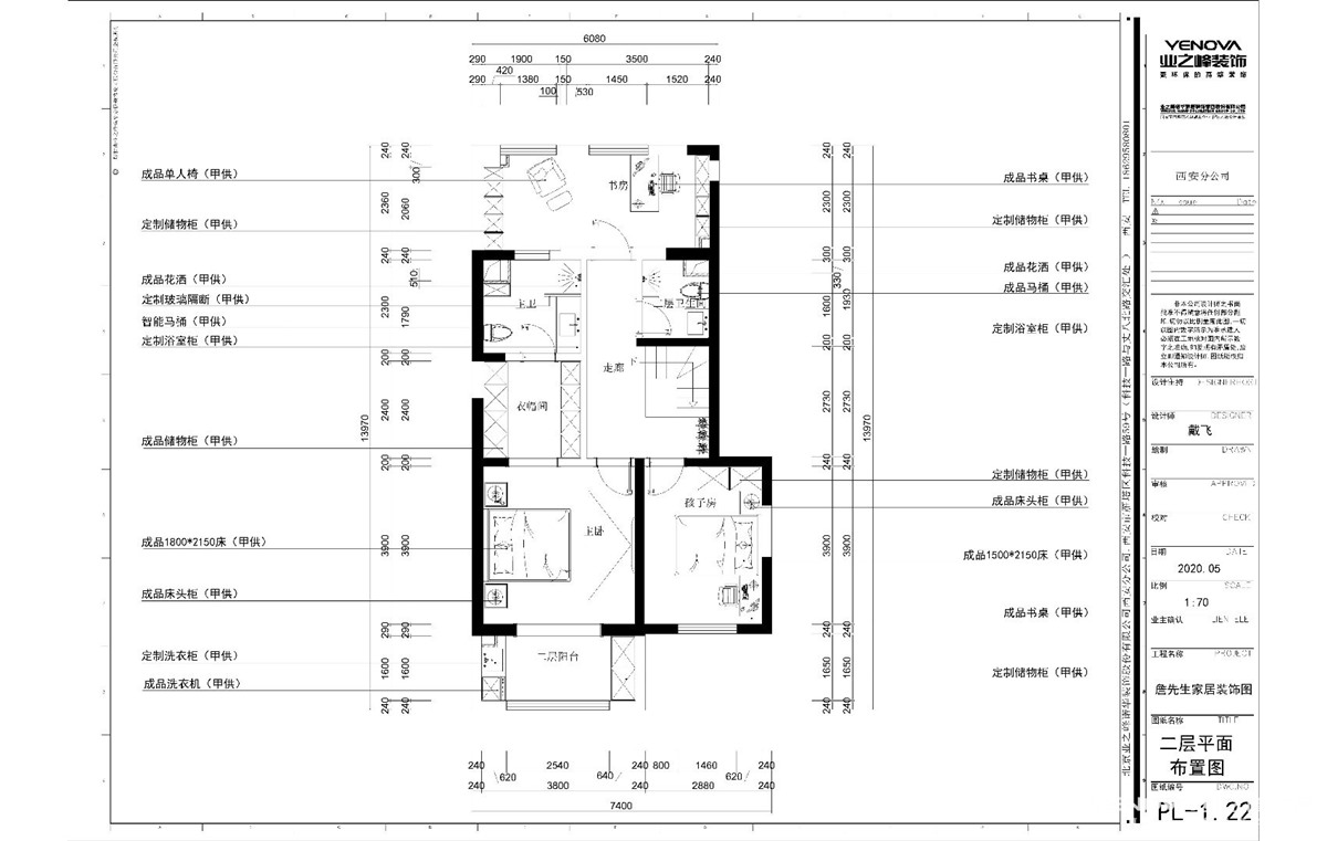
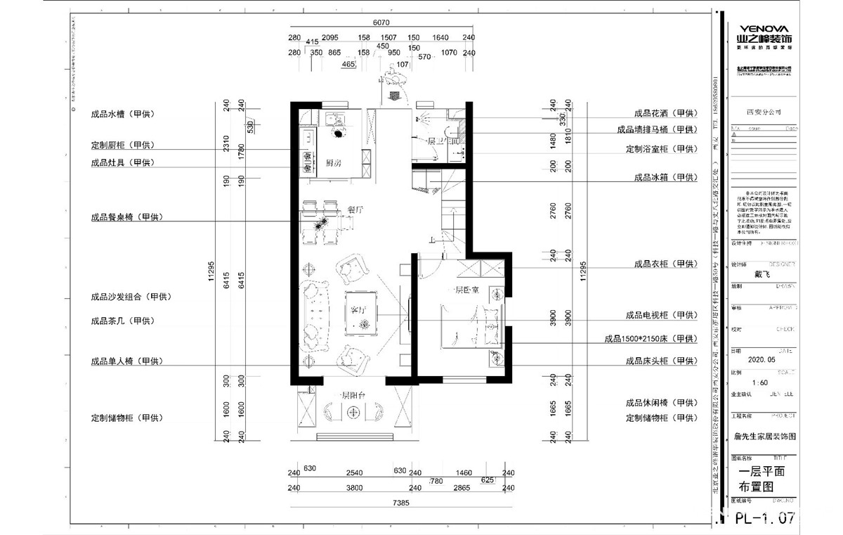
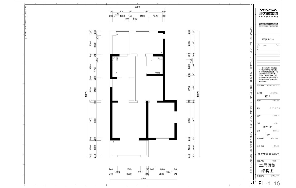
户型图

卫生间
客厅




卧室
书房
餐厅




京公安网备11010502040911